Архитектор Иван Качалов спроектировал квартиру в новом доме — заказчиком на этот раз выступил он сам. Площадь квартиры 70 кв. метров — не так уж много, но Иван продумал каждый сантиметр.
Самые интересные интерьеры — те, что архитекторы и дизайнеры создают для себя. Во-первых, здесь они не зависят от прихотей чужого вкуса, во-вторых, часто рассматривают собственные дома и квартиры как поле для экспериментов — чтобы потом с уверенностью предлагать те или иные решения своим клиентам.
Получившееся пространство, по убеждению архитектора, не уступает по эргономичности 150-метровым квартирам. В семье подрастают две маленькие дочери — внимательный отец уделил первостепенной внимание их безопасности.
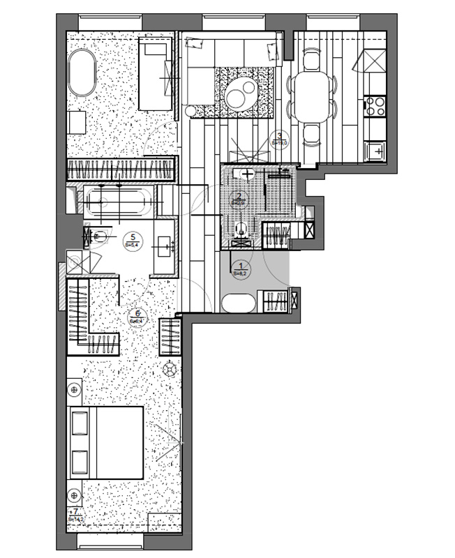
Квартира имеет вытянутую асимметричную форму, но поскольку все углы прямые, ее удалось разделить на комнаты комфортной правильной формы. В одном крыле расположили опен спейс гостиной-кухни-столовой, к которому примыкает детская комната, в другом — апартаменты хозяев, включающие спальню, ванную и гардеробную.
Окна выходят на две стороны. Из-за большой глубины квартиры в середине образовалась зона, куда попадает мало дневного света. Архитектор спланировал пространство так, чтобы здесь оказались санузлы, гардеробные, прихожая.
Архитектор приложил усилия, чтобы квартира казалась больше и просторнее. Активно использовал зеркала. Они создают игру отражений в гостиной и маскируют дверь в детскую, визуально увеличивают спальню, раздвигают коридор. Отделка фасадов кухни Poliform повторена на примыкающих стеновых панелях — этот прием также расширяет пространство.
Интерьер выдержан в природой палитре — коричневых, сероватых, оливковых тонах. Исключение сделали для детской: девочки обитают в розовой комнате с фламинго на обоях. Материалы преобладают натуральные: на стенах панели в шпоне американского ореха, на полу массивная дубовая доска.
Особое внимание архитектор уделил инженерии, применив нестандартные решения. Так, для окон он взял греющее стекло: оно не выпускает тепло зимой и предохраняет от жары летом, терморегуляторы управляют нагревом в автоматическом режиме. Магнитные плинтусы позволяют легко добраться до проводов и коммуникаций. Вместо радиаторов под окнами установлены экономящие место конвекторы, система кондиционирования встроена в отделанную зеркалом стену.
























