Анастасия Зайцева и Антон Лыско, Room Design Buro, доказывают своими проектами: для интересного интерьера бюджет не важен. Фирменный стиль дизайнеров — натуральные материалы (в том числе излюбленная авторами фанера), простые формы, сдержанная цветовая палитра. Квартира в новостройке 32 кв. метра — пример комфортного пространства на скромной площади.
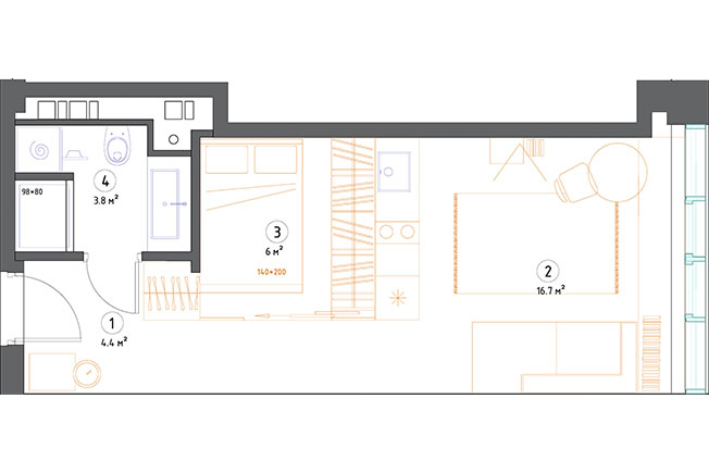
Перед дизайнерами стояла задача разместить все необходимое для комфортного проживания — зону гостиной с диванной группой, кухню с обеденным столом, изолированную спальню, небольшую ванную комнату. И все это на площади всего 32 кв. метра.
Работа над проектом шла очень легко, в атмосфере полного доверия и взаимопонимания. С молодой заказчицей дизайнеры сразу нашли общий язык — девушка открыта ко всему новому, предпочитает натуральные материалы, увлекается современной живописью и архитектурой.
Исходник был неудачный — втянутое помещение с одним-единственным, но большим окном. Авторы проекта предложили создать многофункциональный комплекс со спальным местом на высоте 120 см, под которым бы располагалась система хранения. Заказчица побоялась такого кардинального предложения, поэтому придумали иной вариант.
Спальня отгорожена от кухни-гостиной мебельным боксом с прозрачным стеклом в верхней части. Благодаря такому решению оба помещения кажутся визуально больше, также в спальню проникает естественный свет. Бокс со стороны гостиной включает кухонный гранитур, со стороны спальни — систему хранения.
Практически вся мебель в проекте выполнена на заказ из фанеры. Также минималистична и отделка — крашеные стены, открытый бетонный потолок, бюджетная массивная доска из сосны на полу. Решение обусловлено маленькой площадью квартиры — интерьер получился светлым и простым, отчего пространство кажется больше, чем есть на самом деле.
Еще один интересный акцент — открытая проводка на потолке. «Многих наших заказчиков смущает такое решение, но мы хотели лишний раз доказать, что в открытой проводке нет ничего страшного — она очень уместно смотрится в современных интерьерах», — рассказывают Анастасия и Антон.
Самый интересный предмет мебели в интерьере — винтажный стул 1950-х годов голландского архитектора индонезийского происхождения Хо Ляна Иэ (Kho Liang Ie). Объект был тщательно отреставрирован специально для проекта.








