Архитекторы студии Sabo Project обновили дуплекс в пятом округе Парижа. Главный материал интерьера — березовая фанера.
Авторам предстояло реконструировать просторную, 154 кв. метра, но запущенную двухуровневую квартиру — сделать ее более подходящей для молодых хозяев и безопасной для их ребенка. Преобразования они начали с того, что расчистили коробку: сняли полы, подвесные потолки и желтую ткань со стен — предыдущие владельцы придерживались «традиционных ценностей».
Березовую фанеру очень любили классики модернизма, особенно скандинавы. Заказчикам понравилась идея: использовав недорогой, но знаковый материал, создать уникальный авторский интерьер, бросив вызов показной роскоши. Важно и то, что повсеместное присутствие фанеры способствует цельности проекта.
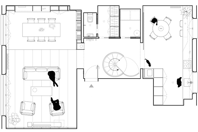
На верхнем уровне — опен спейс гостиной-столовой. Зонирование осуществляется покрытиями: голый бетон на потолке сменяется белой краской, дощатый пол переходит в наливной. В стены встроены шкафы из фанеры, вместо ручек — аккуратные выемки. Глухие отсеки разбавлены открытыми полками, на которых хозяева выставляют произведения искусства, книги, предметы декора.
Одна из стен обшита листами фанеры с круглыми отверстиями: они выглядят своеобразным декором и дают возможность интегрировать навесные полки.
Гостиную-столовую можно закрыть раздвижной перегородкой, опять-таки из фанеры, а чтобы домашний питомец, белый кот, свободно курсировал по дому, в перегородке сделано сводчатое отверстие. Еще одно такое же отверстие — вход в домик, где кот спит.
Кухня также укомплектована мебелью из фанеры. Встроенные модули накрыты столешницей, расположенной довольно высоко, на уровне подоконника. Она служит в том числе и барной стойкой, сидя за которой, приятно смотреть в окно. Стулья подобрали из древесины, максимально близкой по тону к фанере.
Оттенок березовой фанеры определил палитру квартиры, его дополняют серый тон бетона, а также холодный белый. Всплески цвета крайне редки, например, в столовой внимание притягивают красные, синие и желтые провода свисающей с потолка люстры. Важный источник цвета — вещи хозяев, прежде всего книги.
Спальни расположены на более тихом нижнем уровне. Туда ведет лестница. Обычно это главный источник тревог в доме, где есть маленькие дети, но в данном случае дизайнеры оснастили конструкцию съемными защитными воротцами.
Студию Sabo Project основал в 2010 году Алекс Делоне. Сегодня у нее есть офисы в Париже и Нью-Йорке. На счету студии несколько престижных премий, в том числе 40 under 40 Award для перспективных молодых архитекторов Европы.















