Андреас Мартин-Лёф, Andreas Martin-Lof Arkitekter, превратил бывшие лаборатории Фармацевтического института в Стокгольме в светлые апартаменты с историческими деталями.
Здание бывшего Фармацевтического института принадлежит Стокгольмскому университету и находится под защитой как памятник архитектуры с 1935 года. Его преобразование — часть проекта по модернизации жилых помещений в трех зданиях, бывших частью Технического университета.
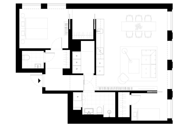
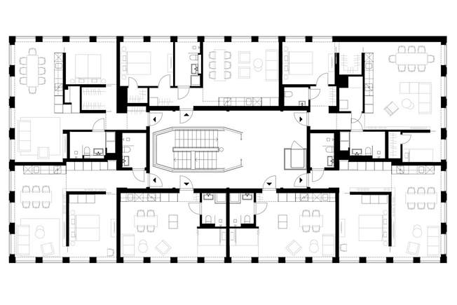
Построенное шведским архитектором Густавом Далом в 1896 году, здание Фармацевтического института было переименовано в Лицей и сейчас включает в себя 39 квартир с потолками высотой 4,3 метра. Шесть из них — лофты, пространство которых расширили за счет чердака. Работая над проектом, архитекторы сохранили оригинальные детали, включая фасады, входы и лестницы. Интерьеры просторных квартир сохраняют исторические элементы из их университетского прошлого.
Почти в каждой квартире две отдельные спальни с ванными комнатами, а также главная спальня и кабинет. В центре — объединенное пространство кухни-столовой-гостиной под эффектным сводчатым потолком. Оригинальные высокие окна, спроектированные Далем, были отреставрированы. Полупрозрачные шторы на тонких черных металлических карнизах обеспечивают обилие естественного света, не перетягивая на себя внимание.
В восстановленных стенных нишах, изначально построенных для книжных полок, сейчас разместились деревянные стеллажи и письменные столы. Шкафы для хранения на кухне напоминают вытяжные шкафы, используемые для научных экспериментов, а форма кухонного острова с мраморной столешницей, дополненного табуретами по дизайну Пьера Жаннере, отсылает к лабораторному столу.
Палитра была выбрана в тон фасаду здания — он нейтрально-светлый, с деревянной дверью, черным навесом и лестничными перилами. Отсюда оттенки слоновой кости и черный мрамор, дополненные белоснежными и графичными черными деталями. Строгую гамму смягчает деревянная мебель, усиливающая сходство со старыми лабораториями. Декором служат изготовленные на заказ зеркала по дизайну Андреаса Мартина-Лёфа и светильники, напоминающие горелки Бунзена.
Помимо интерьером квартир студия отреставрировала и общественные зоны. Чтобы воссоздать облик фойе и лестниц, заказали известняк из того же карьера, который использовался первоначально. Существующие колонны и фасад были перекрашены, а во внутреннем дворе разбит сквер.



















