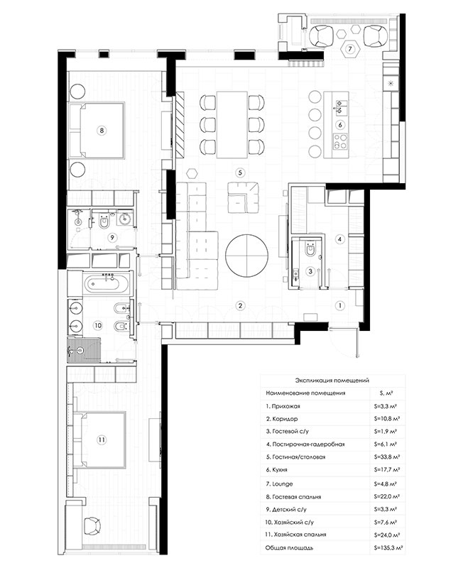
Архитекторы бюро MODUL-ab спроектировали на Юго-Западе Москвы квартиру для студента. Пространство 135 кв. метров расположено на 17 этаже новостройки. Семья заказчика уже не в первый раз обратилась к бюро MODUL-ab, а потому достигнуть взаимопонимания по проекту было не сложно. Главной задачей архитекторов было разграничить приватную и общественную зоны.
Пространство гостиной-столовой-кухни и объединенной лоджии считываются как последовательность зон, каждая со своим насыщением. Приватный блок отделили раздвижной перегородкой и сформировали две спальни с ванными комнатами, просторной гардеробной с постирочной зоной. Еще один санузел спроектировали рядом со входом.
«Мы предпочитаем натуральные спокойные оттенки с вкраплениями акцентов, как красный пуф в гостиной или стены глубокого синего цвета в главной спальне. Яркие элементы добавляют уюта на фоне общей сдержанной концепции. Гостевая спальня решена более нейтрально в светло-серых тонах», — рассказывают авторы проекта.
«Среди отделочных материалов можно выделить окисленную медь (панно в гостиной и столик на лоджии), микробентон, керамогранит, натуральную древесину и искусственную замшу.
Практически везде использовались индивидуальные технические решения, например, опускающийся экран проектора в гостиной для домашнего кинотеатра. Также интересно сделано освещение квартиры: спроектировано большое количество сценариев для конкретных зон с разным типом светильников и диммирования.
Большая часть мебели была изготовлена бюро MODUL-ab специально для проекта. Также мы остановили выбор на предметах в современном стиле итальянских марок — B&B Italia, BoConcept, Novamobili.
Все элементы воедино связала картина в гостиной. Она же и задает тон всему интерьеру. Из-за внушительных габаритов арт-объект не помещался в лифты, не вписывался в лестничные пролеты. Команда из нескольких человек поднимала картину на вытянутых руках вдоль шахты пожарной лестницы на 17 этаж. Можно представить какой степенью физического и эмоционального напряжения сопровождался процесс».
Авторы проекта: Родион Праздников, Жанна Денишева, Катерина Назаренко, Сергей Твердохлебов.























