Бразильская архитектурная студия Arquitetura Nacional преобразила двухуровневые апартаменты в Порту-Алегри. Черная винтовая лестница и мебель местного производства создают оригинальный имидж для бесцветного бетоннного пространства.
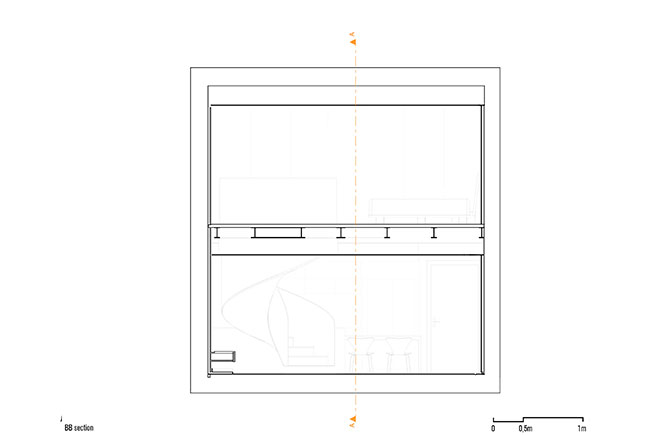
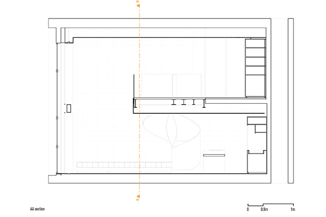
Квартира, доставшаяся архитекторам, имела небольшую площадь — 59 кв. метра и находится в жилом здании недавно построенного многофункционального комплекса. Пожеланием клиента было жить в более комфортном, логистически выстроенном пространстве. Для этого Arquitetura Nacional соединила зоны на первом этаже и включила бытовую технику вовнутрь кухонных шкафов.
С одной стороны квартиры окна имееют размер во всю высоту двухэтажного помещения. Остекление затенено системой, которое управляется пультом дистанционного управления из любой точки квартиры.
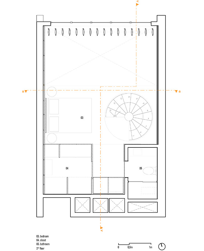
Черная лестница расположена в центре, она соединият нижний уровень с мезонином наверху. Подвесная конструкция была изготовлена из стали. Она была собрана на заводе и отделана на месте пластиковым покрытием и черной краской.
На верхнем этаже спальня расширена и соединена с гардеробной, а ванная комната обновлена. Корпусная мебель, по замыслу архитекторов, отвечает эстетике бразильского модернизма и выполнена местными мастерами.






