В Сингапуре дом спрятали за бетонной решеткой и стеной экзотической зелени - Архитектура и интерьер » Дизайна и строительство.
  • Контакты Аnio
«Дизайна и строительство» - проект видео новостей собранных на одном портале .. » Услуги » Другие услуги » В Сингапуре дом спрятали за бетонной решеткой и стеной экзотической зелени - Архитектура и интерьер

В Сингапуре дом спрятали за бетонной решеткой и стеной экзотической зелени - Архитектура и интерьер

15-04-2023, 00:01   Леокадия   Нашли ошибку?    Мы в Яндекс.Дзен




В Сингапуре дом спрятали за бетонной решеткой и стеной экзотической зелени - Архитектура и интерьер



Учитывая климат и ограниченное пространство, имеющееся для строительства частного дома на одной из улиц Сингапура, специалисты студии HYLA Architects сделали невозможное. Они спрятали жильцов от назойливых взглядов, обеспечили жилище прохладой и тишиной, оградив внутреннее пространство от уличного шума, и превратили крошечный городской участок в благоухающий оазис экзотических джунглей.


В Сингапуре дом спрятали за бетонной решеткой и стеной экзотической зелени, спасающих от палящих лучей солнца (Concrete Yin Yang House).

Перенаселенность крупных городов диктует свои правила в выборе проекта частного жилого дома, который приходится буквально втискивать между соседских строений на небольшом клочке земле и, скорее всего, еще и неправильной формы. Такие сложные условия хоть и создают проблемы разработчикам, но, в большей мере, стимулируют их проявить весь творческий потенциал, чтобы решить проблему размещения на участке, соблюдения всех норм и правил строительства, при этом обеспечить жильцов комфортным жилым пространством.


Фасад с улицы прикрыт не только бетонной оболочкой, но и роскошной зеленью (Concrete Yin Yang House, Сингапур). | Фото: archdaily.com.

Именно такой высший пилотаж продемонстрировали специалисты студии HYLA Architects, взявшись за реализацию проекта под названием Concrete Yin Yang House, который должен был появиться на крошечном участке в Гринлиф-драйв, недалеко от Холланд-роуд Сингапура. Как правило, любой, даже самый сложный участок имеет свои плюсы и минусы, и этот оказался не исключением. Несмотря на то, что три стороны вплотную примыкают к соседским строениям, одна его часть выходила на открытое пространство улицы. Это, конечно же, не лучший вариант, но мастерское использование некоторых архитектурных хитростей позволило обеспечить и прекрасными видами за окном, и максимальным освещением, и уберечь жильцов от личного шума. А также задействовать крышу, о которой, зачастую, забывают проектировщики, превращая ее в глухую, непроницаемую бронь.

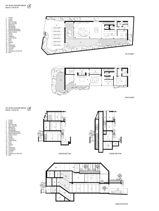
Грамотная планировка позволила максимально оптимизировать площадь имеющегося участка (проект Concrete Yin Yang House от HYLA Architects).

Планировка: Габариты участка подразумевали вертикальное проектирование, при котором задействовали подземный этаж, где помимо подвала предусмотрен гараж, прачечная и бытовое помещение для установки нужного оборудования и узлов коммуникаций. Это позволило разместить основные жилые помещения на втором уровне Concrete Yin Yang House без потери полезной площади. Детские же спальни расположены на мезонине, а главная – на мансардном уровне, чтобы обеспечить более приятный обзор. Также получилось включить внутренний двор, который примыкает к основным жилым помещениям, обеспечивает зеленой зоной и приятной обстановкой. При этом внутренний двор удалось разместить в передней части дома, что позволило спрятать жилые помещения в глубине участка, чем обеспечивается и конфиденциальность, и максимальное уединение.

Перфорированная оболочка из бетонных плит является многофункциональным элементом (Concrete Yin Yang House, Сингапур).


Бетонный экран образует навесы над балконами и террасами, обеспечивая легкую тень для растений (Concrete Yin Yang House, Сингапур). | Фото: archdaily.com.

Но все же основной изюминкой проекта являются перфорированные бетонные плиты, которые открывают большую часть пространства, но при этом создают надежный барьер между соседскими постройками, улицей и проникновением палящих солнечных лучей. Бетонная оболочка в прямом смысле окутывает структуру довольно просторного дома (общая площадь почти 500 кв. метров), следуя за его трапециевидной формой, имеющей сужение к лицевому фасаду, выходящему на открытую часть улицы. При этом три проблемные стороны имеют более плотную фактуру, чтобы минимизировать внимание вездесущих соседей, а со стороны дороги можно насладиться открывающимся простором.

Масштабное озеленение фасада является и украшением дома, и спасением от жары (Concrete Yin Yang House, Сингапур). | Фото: habitusliving.com.


На единственной открытой стороне с выходом на улицу не установлены бетонные решетки, чтобы впустить как можно больше света внутрь дома (Concrete Yin Yang House, Сингапур).

Особое внимание авторы Novate.ru хотели бы обратить на бетонный экран, закрывающий прозрачный потолок и верхнюю часть стеклянных стен. Мало того, что он обеспечивает живительную тень и приватность личной жизни, так еще и выступает в роли открытых пространств, сквозь которые пробиваются живые растения, создавая удивительный визуальный эффект, а также является «скалодромом» для хозяйских кошек, свободно продвигающихся между этажами с наружной стороны здания. Concrete Yin Yang House также перфорирован наверху наклонным бетонным экраном, предлагающим тень стеклянному фасаду и в то же время раскрывающим зелень, пронизывающую перфорации.


Подземный и цокольный этажи позволили разгрузить жилое пространство, сделать его более просторным и комфортным (Concrete Yin Yang House, Сингапур). | Фото: habitusliving.com.


Бассейн во внутреннем дворе при правильно организованной системе вентиляции поможет естественным образом охладить внутренние пространства (Concrete Yin Yang House, Сингапур). | Фото: habitusliving.com.

Главными элементами к точной геометрии бетонной оболочки и экрана являются криволинейной формы террасы, прикрывающие выезд автомобилей из гаража, консольные выступы, образующие балконы и террасы, а также являются навесом над зоной отдыха у бассейна. Водный объект разнообразит домашний отдых, а также позволяет создать благоприятный микроклимат внутри жилища, ведь не секрет, что в Сингапуре, особенно в мегаполисах стоит неимоверная жара.


Зона отдыха у бассейна разнообразит досуг членов семьи (Concrete Yin Yang House, Сингапур).

Если говорить об интерьере Concrete Yin Yang House, то общая высота здания позволяла создать объединенное жилое пространства на первом уровне над землей, а также изящные переходы, соединяющие разные уровни дома. Все спальные и жилые комнаты ориентированы во внутренний двор, так что новоиспеченным владельцам не грозит любование проезжей частью или глухой соседской стеной.

Интерьер общей жилой зоны (Concrete Yin Yang House, Сингапур). | Фото: designboom.com.


Вряд ли найдется человек, который откажется от такой ванной комнаты (Concrete Yin Yang House, Сингапур). | Фото: designboom.com.

При оформлении внутреннего пространства мудрствовать не стали, бетонные элементы, выступающие в роли напольного покрытия, стен, перекрытия, потолка и скульптурных лестниц так и оставили без дополнительной отделки. Минимальное количество мягкой мебели, деревянные или каменные панели, столы и стулья, необходимое сантехническое оборудование и бытовая техника, масштабные окна, позволяющие устраивать захватывающие представления игры света и тени, эксклюзивные светильники – вот и весь нехитрый набор предметов, которого вполне достаточно для современной семьи, предпочитающей минимализм.
В Сингапуре особое внимание уделяют вертикальному озеленению и созданию «зеленых» крыш. Среди последних реализованных проектов особо выделяется реконструкция ветхой усадьбы, дом которой превратили в пышный сад, а участок – в благоухающий лес с водоемом.
В поисках интересных фактов рекомендуем заглянуть на наш канал:

Учитывая климат и ограниченное пространство, имеющееся для строительства частного дома на одной из улиц Сингапура, специалисты студии HYLA Architects сделали невозможное. Они спрятали жильцов от назойливых взглядов, обеспечили жилище прохладой и тишиной, оградив внутреннее пространство от уличного шума, и превратили крошечный городской участок в благоухающий оазис экзотических джунглей. В Сингапуре дом спрятали за бетонной решеткой и стеной экзотической зелени, спасающих от палящих лучей солнца (Concrete Yin Yang House). Перенаселенность крупных городов диктует свои правила в выборе проекта частного жилого дома, который приходится буквально втискивать между соседских строений на небольшом клочке земле и, скорее всего, еще и неправильной формы. Такие сложные условия хоть и создают проблемы разработчикам, но, в большей мере, стимулируют их проявить весь творческий потенциал, чтобы решить проблему размещения на участке, соблюдения всех норм и правил строительства, при этом обеспечить жильцов комфортным жилым пространством. Фасад с улицы прикрыт не только бетонной оболочкой, но и роскошной зеленью (Concrete Yin Yang House, Сингапур). | Фото: archdaily.com. Именно такой высший пилотаж продемонстрировали специалисты студии HYLA Architects, взявшись за реализацию проекта под названием Concrete Yin Yang House, который должен был появиться на крошечном участке в Гринлиф-драйв, недалеко от Холланд-роуд Сингапура. Как правило, любой, даже самый сложный участок имеет свои плюсы и минусы, и этот оказался не исключением. Несмотря на то, что три стороны вплотную примыкают к соседским строениям, одна его часть выходила на открытое пространство улицы. Это, конечно же, не лучший вариант, но мастерское использование некоторых архитектурных хитростей позволило обеспечить и прекрасными видами за окном, и максимальным освещением, и уберечь жильцов от личного шума. А также задействовать крышу, о которой, зачастую, забывают проектировщики, превращая ее в глухую, непроницаемую бронь. Грамотная планировка позволила максимально оптимизировать площадь имеющегося участка (проект Concrete Yin Yang House от HYLA Architects). Планировка: Габариты участка подразумевали вертикальное проектирование, при котором задействовали подземный этаж, где помимо подвала предусмотрен гараж, прачечная и бытовое помещение для установки нужного оборудования и узлов коммуникаций. Это позволило разместить основные жилые помещения на втором уровне Concrete Yin Yang House без потери полезной площади. Детские же спальни расположены на мезонине, а главная – на мансардном уровне, чтобы обеспечить более приятный обзор. Также получилось включить внутренний двор, который примыкает к основным жилым помещениям, обеспечивает зеленой зоной и приятной обстановкой. При этом внутренний двор удалось разместить в передней части дома, что позволило спрятать жилые помещения в глубине участка, чем обеспечивается и конфиденциальность, и максимальное уединение. Перфорированная оболочка из бетонных плит является многофункциональным элементом (Concrete Yin Yang House, Сингапур). Бетонный экран образует навесы над балконами и террасами, обеспечивая легкую тень для растений (Concrete Yin Yang House, Сингапур). | Фото: archdaily.com. Но все же основной изюминкой проекта являются перфорированные бетонные плиты, которые открывают большую часть пространства, но при этом создают надежный барьер между соседскими постройками, улицей и проникновением палящих солнечных лучей. Бетонная оболочка в прямом смысле окутывает структуру довольно просторного дома (общая площадь почти 500 кв. метров), следуя за его трапециевидной формой, имеющей сужение к лицевому фасаду, выходящему на открытую часть улицы. При этом три проблемные стороны имеют более плотную фактуру, чтобы минимизировать внимание вездесущих соседей, а со стороны дороги можно насладиться открывающимся простором. Масштабное озеленение фасада является и украшением дома, и спасением от жары (Concrete Yin Yang House, Сингапур). | Фото: habitusliving.com. На единственной открытой стороне с выходом на улицу не установлены бетонные решетки, чтобы впустить как можно больше света внутрь дома (Concrete Yin Yang House, Сингапур). Особое внимание авторы Novate.ru хотели бы обратить на бетонный экран, закрывающий прозрачный потолок и верхнюю часть стеклянных стен. Мало того, что он обеспечивает живительную тень и приватность личной жизни, так еще и выступает в роли открытых пространств, сквозь которые пробиваются живые растения, создавая удивительный визуальный эффект, а также является «скалодромом» для хозяйских кошек, свободно продвигающихся между этажами с наружной стороны здания. Concrete Yin Yang House также перфорирован наверху наклонным бетонным экраном, предлагающим тень стеклянному фасаду и в то же время раскрывающим зелень, пронизывающую перфорации. Подземный и цокольный этажи позволили разгрузить жилое пространство, сделать его более просторным и комфортным (Concrete Yin Yang House, Сингапур). | Фото: habitusliving.com. Бассейн во внутреннем дворе при правильно организованной системе вентиляции поможет естественным образом охладить внутренние пространства (Concrete Yin Yang House, Сингапур). | Фото: habitusliving.com. Главными элементами к точной геометрии бетонной оболочки и экрана являются криволинейной формы террасы, прикрывающие выезд автомобилей из гаража, консольные выступы, образующие балконы и террасы, а также являются навесом над зоной отдыха у бассейна. Водный объект разнообразит домашний отдых, а также позволяет создать благоприятный микроклимат внутри жилища, ведь не секрет, что в Сингапуре, особенно в мегаполисах стоит неимоверная жара. Зона отдыха у бассейна разнообразит досуг членов семьи (Concrete Yin Yang House, Сингапур). Если говорить об интерьере Concrete Yin Yang House, то общая высота здания позволяла создать объединенное жилое пространства на первом уровне над землей, а также изящные переходы, соединяющие разные уровни дома. Все спальные и жилые комнаты ориентированы во внутренний двор, так что новоиспеченным владельцам не грозит любование проезжей частью или глухой соседской стеной. Интерьер общей жилой зоны (Concrete Yin Yang House, Сингапур). | Фото: designboom.com. Вряд ли найдется человек, который откажется от такой ванной комнаты (Concrete Yin Yang House, Сингапур). | Фото: designboom.com. При оформлении внутреннего пространства мудрствовать не стали, бетонные элементы, выступающие в роли напольного покрытия, стен, перекрытия, потолка и скульптурных лестниц так и оставили без дополнительной отделки. Минимальное количество мягкой мебели, деревянные или каменные панели, столы и стулья, необходимое сантехническое оборудование и бытовая техника, масштабные окна, позволяющие устраивать захватывающие представления игры света и тени, эксклюзивные светильники – вот и весь нехитрый набор предметов, которого вполне достаточно для современной семьи, предпочитающей минимализм. В Сингапуре особое внимание уделяют вертикальному озеленению и созданию «зеленых» крыш. Среди последних реализованных проектов особо выделяется реконструкция ветхой усадьбы, дом которой превратили в пышный сад, а участок – в благоухающий лес с водоемом. В поисках интересных фактов рекомендуем заглянуть на наш канал:

Цитирование статьи, картинки - фото скриншот - Rambler News Service.
Иллюстрация к статье - Яндекс. Картинки.
Есть вопросы. Напишите нам.
Общие правила  поведения на сайте.


«anio.su»