Эко-домик, который можно пристроить на клочке земли, крыше многоэтажки и даже парковке - Архитектура и интерьер » Дизайна и строительство.
  • Контакты Аnio
«Дизайна и строительство» - проект видео новостей собранных на одном портале .. » Услуги » Другие услуги » Эко-домик, который можно пристроить на клочке земли, крыше многоэтажки и даже парковке - Архитектура и интерьер

Эко-домик, который можно пристроить на клочке земли, крыше многоэтажки и даже парковке - Архитектура и интерьер

15-06-2022, 00:00   Рада   Нашли ошибку?    Мы в Яндекс.Дзен




Эко-домик, который можно пристроить на клочке земли, крыше многоэтажки и даже парковке - Архитектура и интерьер



В современном мире все чаще звучит вопрос о том, как добиться устойчивости в архитектуре и обеспечить экологически чистым, а также доступным жильем людей. Эту задачу попытались решить студенты Кобургского университета прикладных наук и искусств под руководством профессора Райнера Хирта. Они спроектировали самодостаточный домик, при сборке которого не использовались строительные материалы, выделяющие углекислый газ, цемент и гвозди. При этом его легко, быстро и дешево можно собрать/разобрать и устанавливать на самом крошечном клочке земли, на крыше и даже парковке. Но на этом их эксперимент не окончен.


Экспериментальный эко-домик Circular Tiny House CTH*1, который можно пристроить на крошечном клочке земли, крыше или парковке (Кобург, Германия). | Фото: archdaily.com.

Проблемам вредных выбросов в строительной индустрии (причем на разных этапах) в последние годы уделяется особое внимание. В Университете прикладных наук и искусств Кобурга (Hochschule für angewandte Wissenschaften Coburg), например, под руководством профессора Райнера Хирта разрабатывалась и реализовывалась магистерская программа DESIGN and MAKE sustainably, направленная на решение вопроса устойчивости архитектуры.

Проект самодостаточного эко-жилища, разработанный выпускниками магистратуры Университета прикладных наук и искусств Кобурга (Circular Tiny House CTH*1). | Фото: archdaily.com.

Справка: Обеспокоенность выбросами углекислого газа в строительном секторе началась после опубликования отчета ООН за 2020 год, в котором сказано, что на эту индустрию 38 % всех выбросов. Эта угрожающая цифра растет с каждым годом, особенно в крупных городах, в связи с повышающимся спросом на жилье. Что вызывает и увеличение количества строительного мусора, на утилизацию которого уходят немалые средства, а также истощение природных ресурсов. Чтобы изучить возможности инновационных технологий в строительной отрасли, профессор университета Кобурга инициировал запуск Программы DESIGN and MAKE sustainably («Проектируй и создавай устойчиво»), рассчитанную на выпускников (магистров).


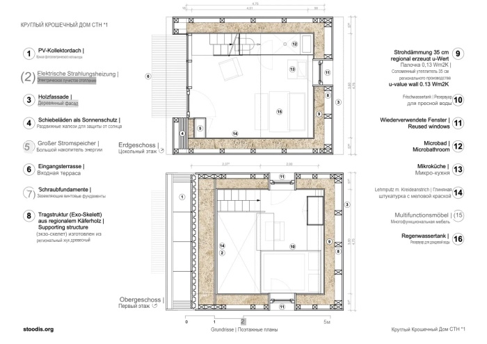
Планировка крошечного модуля, который легко можно использовать в качестве альтернативного жилища для 1-2 человек (Circular Tiny House CTH*1). | Фото: archdaily.com.


Наглядный пример того, какие материалы и инновационные системы используются при устойчивом строительстве (Circular Tiny House CTH*1). | Фото: latestnews.upexampaper.com.

Студентам предстояло разработать и реализовать проект экспериментального жилища под названием Circular Tiny House CTH*1 (он же CTH’1) рассчитанного на долгосрочное изучение инновационных технологий, в основе которых лежит использование вторичных, перерабатываемых и возобновляемых материалов, не оставляющих углеродный след. Главная идея программа – Cradle-to-Cradle («от колыбели до колыбели», или же C2C), что означает реализация концепции, основанной на технологии безотходного производства, благодаря чему минимизируется влияние на окружающую среду. Такими материалами оказались: натуральное дерево, ставшее основным элементом для создания небольшого модульного домика, пригодного для постоянного проживания 1-2 человек, глина, мел и солома.

Каркас экспериментального домика сделан из бруса, скрепленного только саморезами и уголками (Circular Tiny House CTH*1, Германия).

По сведения авторов Novate.ru, реализация проекта Circular Tiny House CTH*1 началась с анализа и тщательного изучения городского планирования, чтобы определиться, какое жилище реально построить в условиях переполненных мегаполисов с катастрофической нехватки земельных ресурсов. Исследование показало, что в черте развитых городов могут быть востребованы крошечные дома, которые легко втиснуть на небольшом клочке земли, на крыше многоэтажек или на автостоянках/парковках. Отдельно такие строения могут заинтересовать и владельцев пригородных участков земли, так называемых Kleingarten, что в переводе означает «малый сад» или «второе жилище», предназначенное для отдыха и свободного времяпрепровождения (в наших реалиях – это дачи). Кстати сказать, немцы, из всех европейцев, самые заядлые дачники, правда, земли под садовые товарищества выделяются самые неликвидные, хотя они и находятся в черте города или поблизости.

В качестве утеплителя использовали лишь солому из ближнего фермерского хозяйства (Circular Tiny House CTH*1, Германия). | Фото: latestnews.upexampaper.com.


Студенты оштукатуривали стены эко-домика составом из глины и воды (Circular Tiny House CTH*1, Кобург). | Фото: latestnews.upexampaper.com.

Особенности строительства: При строительстве экспериментального жилого блока CTH’1 использовались только натуральные материалы: древесина, солома, мел. Доски были сделаны из пострадавшей от короеда древесины, которая могла пойти только на второсортные изделия (паллеты, обрешетка грузов и т. д.); солома приобретена у фермера, чье хозяйство расположено в пригороде; глина, мел, дверь и окна были взяты из старых зданий, которые пошли под снос. При сборке экспериментального домика Circular Tiny House CTH*1 не использовались традиционные строительные материалы (бетон, известь, камень, щебенка), минеральные/синтетические утеплители и вяжущие растворы, которые являются главными элементами, активно выделяющими углерод. А в качестве фундамента прекрасно подошли винтовые стальные сваи, которые минимизируют воздействие на почву и экосистему (если домик будет установлен в природной зоне).


На пологом скате крыши установили солнечные панели, которые обеспечат энергонезависимость объекта (Circular Tiny House CTH*1, Кобург). | Фото: upjobsnews.com.

В итоге был спроектирован домик площадью 19 кв. м (с учетом двух уровней полезной площади) асимметричной формы. При этом все конструкционные элементы легко собирались (без применения клея и гвоздей), чтобы так же легко демонтировать через 5 лет, когда окончится эксперимент. При этом каждая деталь модульной конструкции после разборки не потребует дорогостоящей утилизации. Дерево – пойдет на переработку, глину и мел снова можно будет использовать в строительстве, а солому фермер внесет в качестве удобрения во время вспашки полей.


Асимметричная форма модуля выглядит более современно и привлекательно (Circular Tiny House CTH*1, Германия).

Необычная конструкция CTH’1 была вызвана сразу двумя причинами – привлекательный внешний вид и увеличение площади крыши, на которой установлены солнечные панели, обеспечивающие энергетическую независимость объекта. Плюс ко всему высота конька позволила использовать чердачную часть в качестве спальной комнаты и домашнего офиса, что освободило напольное пространство для гостиной-столовой и кухни. Кстати сказать, при анализе городской среды, студенты мониторили еще один вопрос, который касался площади жилого пространства необходимого для комфортного проживания молодых/одиноких людей.

Распределение жилых зон в экспериментальном домике, общая площадь которого составляет 19 кв. метров (Circular Tiny House CTH*1, Кобург).

Большинство опрашиваемых вполне устроил бы домик с зоной отдыха (диван должен быть непременно), мини-кухней, ванной комнатой, спальней на двоих, рабочим местом и шкафом для вещей, трансформирующейся мебелью, позволяющей разместить на ночлег еще 2-4 человека. Учитывая пожелания и рациональность использования небольшого пространства, именно эти зоны и были оборудованы в экспериментальной модели CTH’1, рассчитанной на проживание студентов университета в период обучения с 15 марта по 1 декабря (в качестве гостевого домика).


Перед домом предусмотрена входная терраса, где можно пообщаться с друзьями или руководителем проекта (Circular Tiny House CTH*1, Германия).

Поскольку еще одним условием, которые должны были выполнить будущие магистры, являлась полная самодостаточность объекта, то для жизнеобеспечения CTH’1 были внедрены солнечные панели (их мощности достаточно для обеспечения всех нужд проживающих, вплоть до приготовления пищи, нагрева воды, отопления и вентиляции), система сбора, очистки, хранения дождевой воды, а также утилизации сточных вод. Все эти системы, как и степень комфортности проживания в разное время года студенты старших курсов будут мониторить в режиме реального времени (все 5 лет), что позволит изучить эффективность устойчивых методов строительства, примененных в конкретном случае.
Наше новое видео расскажет о том, что означает «игра в кукушку», которой увлекались русские офицеры в XIX веке, и в чем ее смысл:
В продолжение темы, предлагаем узнать, почему при выборе/строительстве дома не стоит гоняться за квадратными метрами и огромными участками земли.

В современном мире все чаще звучит вопрос о том, как добиться устойчивости в архитектуре и обеспечить экологически чистым, а также доступным жильем людей. Эту задачу попытались решить студенты Кобургского университета прикладных наук и искусств под руководством профессора Райнера Хирта. Они спроектировали самодостаточный домик, при сборке которого не использовались строительные материалы, выделяющие углекислый газ, цемент и гвозди. При этом его легко, быстро и дешево можно собрать/разобрать и устанавливать на самом крошечном клочке земли, на крыше и даже парковке. Но на этом их эксперимент не окончен. Экспериментальный эко-домик Circular Tiny House CTH*1, который можно пристроить на крошечном клочке земли, крыше или парковке (Кобург, Германия). | Фото: archdaily.com. Проблемам вредных выбросов в строительной индустрии (причем на разных этапах) в последние годы уделяется особое внимание. В Университете прикладных наук и искусств Кобурга (Hochschule für angewandte Wissenschaften Coburg), например, под руководством профессора Райнера Хирта разрабатывалась и реализовывалась магистерская программа DESIGN and MAKE sustainably, направленная на решение вопроса устойчивости архитектуры. Проект самодостаточного эко-жилища, разработанный выпускниками магистратуры Университета прикладных наук и искусств Кобурга (Circular Tiny House CTH*1). | Фото: archdaily.com. Справка: Обеспокоенность выбросами углекислого газа в строительном секторе началась после опубликования отчета ООН за 2020 год, в котором сказано, что на эту индустрию 38 % всех выбросов. Эта угрожающая цифра растет с каждым годом, особенно в крупных городах, в связи с повышающимся спросом на жилье. Что вызывает и увеличение количества строительного мусора, на утилизацию которого уходят немалые средства, а также истощение природных ресурсов. Чтобы изучить возможности инновационных технологий в строительной отрасли, профессор университета Кобурга инициировал запуск Программы DESIGN and MAKE sustainably («Проектируй и создавай устойчиво»), рассчитанную на выпускников (магистров). Планировка крошечного модуля, который легко можно использовать в качестве альтернативного жилища для 1-2 человек (Circular Tiny House CTH*1). | Фото: archdaily.com. Наглядный пример того, какие материалы и инновационные системы используются при устойчивом строительстве (Circular Tiny House CTH*1). | Фото: latestnews.upexampaper.com. Студентам предстояло разработать и реализовать проект экспериментального жилища под названием Circular Tiny House CTH*1 (он же CTH’1) рассчитанного на долгосрочное изучение инновационных технологий, в основе которых лежит использование вторичных, перерабатываемых и возобновляемых материалов, не оставляющих углеродный след. Главная идея программа – Cradle-to-Cradle («от колыбели до колыбели», или же C2C), что означает реализация концепции, основанной на технологии безотходного производства, благодаря чему минимизируется влияние на окружающую среду. Такими материалами оказались: натуральное дерево, ставшее основным элементом для создания небольшого модульного домика, пригодного для постоянного проживания 1-2 человек, глина, мел и солома. Каркас экспериментального домика сделан из бруса, скрепленного только саморезами и уголками (Circular Tiny House CTH*1, Германия). По сведения авторов Novate.ru, реализация проекта Circular Tiny House CTH*1 началась с анализа и тщательного изучения городского планирования, чтобы определиться, какое жилище реально построить в условиях переполненных мегаполисов с катастрофической нехватки земельных ресурсов. Исследование показало, что в черте развитых городов могут быть востребованы крошечные дома, которые легко втиснуть на небольшом клочке земли, на крыше многоэтажек или на автостоянках/парковках. Отдельно такие строения могут заинтересовать и владельцев пригородных участков земли, так называемых Kleingarten, что в переводе означает «малый сад» или «второе жилище», предназначенное для отдыха и свободного времяпрепровождения (в наших реалиях – это дачи). Кстати сказать, немцы, из всех европейцев, самые заядлые дачники, правда, земли под садовые товарищества выделяются самые неликвидные, хотя они и находятся в черте города или поблизости. В качестве утеплителя использовали лишь солому из ближнего фермерского хозяйства (Circular Tiny House CTH*1, Германия). | Фото: latestnews.upexampaper.com. Студенты оштукатуривали стены эко-домика составом из глины и воды (Circular Tiny House CTH*1, Кобург). | Фото: latestnews.upexampaper.com. Особенности строительства: При строительстве экспериментального жилого блока CTH’1 использовались только натуральные материалы: древесина, солома, мел. Доски были сделаны из пострадавшей от короеда древесины, которая могла пойти только на второсортные изделия (паллеты, обрешетка грузов и т. д.); солома приобретена у фермера, чье хозяйство расположено в пригороде; глина, мел, дверь и окна были взяты из старых зданий, которые пошли под снос. При сборке экспериментального домика Circular Tiny House CTH*1 не использовались традиционные строительные материалы (бетон, известь, камень, щебенка), минеральные/синтетические утеплители и вяжущие растворы, которые являются главными элементами, активно выделяющими углерод. А в качестве фундамента прекрасно подошли винтовые стальные сваи, которые минимизируют воздействие на почву и экосистему (если домик будет установлен в природной зоне). На пологом скате крыши установили солнечные панели, которые обеспечат энергонезависимость объекта (Circular Tiny House CTH*1, Кобург). | Фото: upjobsnews.com. В итоге был спроектирован домик площадью 19 кв. м (с учетом двух уровней полезной площади) асимметричной формы. При этом все конструкционные элементы легко собирались (без применения клея и гвоздей), чтобы так же легко демонтировать через 5 лет, когда окончится эксперимент. При этом каждая деталь модульной конструкции после разборки не потребует дорогостоящей утилизации. Дерево – пойдет на переработку, глину и мел снова можно будет использовать в строительстве, а солому фермер внесет в качестве удобрения во время вспашки полей. Асимметричная форма модуля выглядит более современно и привлекательно (Circular Tiny House CTH*1, Германия). Необычная конструкция CTH’1 была вызвана сразу двумя причинами – привлекательный внешний вид и увеличение площади крыши, на которой установлены солнечные панели, обеспечивающие энергетическую независимость объекта. Плюс ко всему высота конька позволила использовать чердачную часть в качестве спальной комнаты и домашнего офиса, что освободило напольное пространство для гостиной-столовой и кухни. Кстати сказать, при анализе городской среды, студенты мониторили еще один вопрос, который касался площади жилого пространства необходимого для комфортного проживания молодых/одиноких людей. Распределение жилых зон в экспериментальном домике, общая площадь которого составляет 19 кв. метров (Circular Tiny House CTH*1, Кобург). Большинство опрашиваемых вполне устроил бы домик с зоной отдыха (диван должен быть непременно), мини-кухней, ванной комнатой, спальней на двоих, рабочим местом и шкафом для вещей, трансформирующейся мебелью, позволяющей разместить на ночлег еще 2-4 человека. Учитывая пожелания и рациональность использования небольшого пространства, именно эти зоны и были оборудованы в экспериментальной модели CTH’1, рассчитанной на проживание студентов университета в период обучения с 15 марта по 1 декабря (в качестве гостевого домика). Перед домом предусмотрена входная терраса, где можно пообщаться с друзьями или руководителем проекта (Circular Tiny House CTH*1, Германия). Поскольку еще одним условием, которые должны были выполнить будущие магистры, являлась полная самодостаточность объекта, то для жизнеобеспечения CTH’1 были внедрены солнечные панели (их мощности достаточно для обеспечения всех нужд проживающих, вплоть до приготовления пищи, нагрева воды, отопления и вентиляции), система сбора, очистки, хранения дождевой воды, а также утилизации сточных вод. Все эти системы, как и степень комфортности проживания в разное время года студенты старших курсов будут мониторить в режиме реального времени (все 5 лет), что позволит изучить эффективность устойчивых методов строительства, примененных в конкретном случае. Наше новое видео расскажет о том, что означает «игра в кукушку», которой увлекались русские офицеры в XIX веке, и в чем ее смысл: В продолжение темы, предлагаем узнать, почему при выборе/строительстве дома не стоит гоняться за квадратными метрами и огромными участками земли.

Цитирование статьи, картинки - фото скриншот - Rambler News Service.
Иллюстрация к статье - Яндекс. Картинки.
Есть вопросы. Напишите нам.
Общие правила  поведения на сайте.


«anio.su»