Японский минимализм: маленький домик с большой террасой и тайной комнатой - Архитектура и интерьер » Дизайна и строительство.
  • Контакты Аnio
«Дизайна и строительство» - проект видео новостей собранных на одном портале .. » Услуги » Другие услуги » Японский минимализм: маленький домик с большой террасой и тайной комнатой - Архитектура и интерьер

Японский минимализм: маленький домик с большой террасой и тайной комнатой - Архитектура и интерьер

4-07-2024, 00:01   Олимпиада   Нашли ошибку?    Мы в Яндекс.Дзен




Японский минимализм: маленький домик с большой террасой и тайной комнатой - Архитектура и интерьер



Токио занимает всего 0,6% заселенной территории Японии, при этом столица является домом для 10% населения всей страны, что делает ее одним из самых густонаселенных мегаполисов мира, где недвижимость стоит нереальных денег, а архитекторы разрабатывают потрясающие проекты, пытаясь втиснуть жилое пространство даже в самый крошечный уголок. Не стал исключением и Такуро Ямамото со своей командой креативных дизайнеров и архитекторов, которые решили доказать, что максимальное жилое пространство не является единственным ключом к хорошему качеству жизни.


«Маленький домик с большой террасой» – яркий пример японского минимализма и неожиданного распределения пространства (Токио). | Фото: divisare.com.

Широко шагающий процесс урбанизации заставляет архитекторов изыскивать любые возможности, позволяющие обеспечить как можно больше горожан крышей над головой. Чем больше мегаполис, тем удивительнее проекты частных домов, которые пытаются втиснуть в самые крошечные участки земли без ущерба для комфорта их жильцов. Дальше всех в этом вопросе продвинулись японские дизайнеры, которым удается создавать потрясающие жилища, ориентированные на потребности заказчиков.

Открытые террасы, объединенные с домом одной оболочкой, – главная изюминка проекта (Токио, Япония). | Фото: magazindomov.ru.


Западная сторона «Маленького домика с большой террасой» имеет выступ, где находится ванная комната (Токио, Япония). | Фото: spoon-tamago.com.

Особое внимание редакция Novate.ru хотела бы обратить на завершенный проект частного дома в районе Эдогава, в Токио, разработанный известным современным архитектором и основателем студии Takuro Yamamoto Architects, Такуро Ямамото. Речь идет о городской жилой структуре с говорящим названием «Маленький домик с большой террасой» (Little House with a Big Terrace). Своим проектом Ямамото вместе со своей креативной командой решил доказать, что «максимальное жилое пространство внутри здания не является единственным ключом к хорошему качеству жизни», особенно, если клиенту требуется достаточно места для занятий на свежем воздухе.

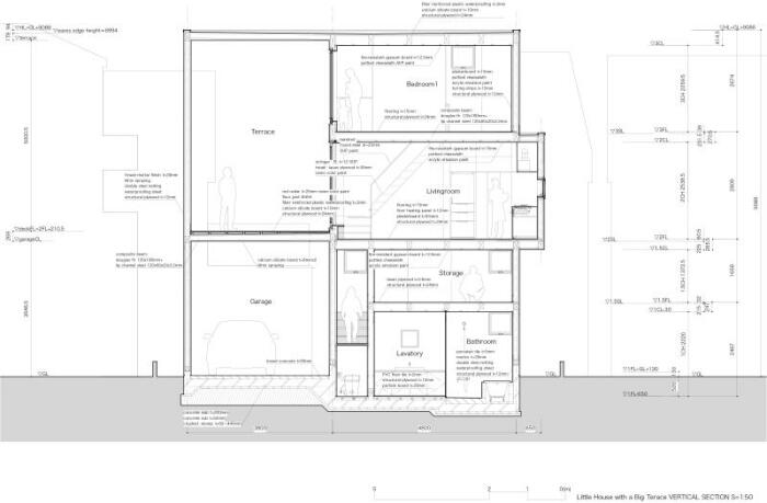
План-чертеж «Маленького домика с большой террасой. | Фото: divisare.com.


Стеклянный торец жилого пространства спрятан за глухой стеной террасы (Токио, Япония).

Именно по этой причине созданию открытого пространства рядом с основной частью жилого дома уделили главное внимание. Причем террасы объединены с главным структурным ядром в единое целое, создавая гармоничный образ, бросающийся в глаза уже на подходе к дому. Открытые пролеты занимают значительную часть объекта, чтобы объем получившейся «ниши» не казался урезанным и неудобным. Благодаря этому террасу можно использовать и в качестве студии занятий йогой (на верхнем уровне), и как парковочное место для автомобиля (на нижнем).

Террасу нижнего уровня можно использовать в качестве гаража или зоны отдыха (Токио, Япония). | Фото: magazindomov.ru.

Открытые террасы объединены с жилыми зонами большими окнами и стеклянными дверями, что позволяет последним выглядеть более объемными и светлыми. Масштабное остекление, несмотря на высокую стоимость, не стало дополнительной статьей расходов на кондиционирование воздуха и обогрев помещений, поскольку использовались энергоэффективные стеклопакеты. Плюс ко всему окна были установлены в ключевых местах, что позволило улучшить качество пространств за счет неограниченного потока света и возможности естественного проветривания.

Масштабное остекление обеспечивает жилые зоны обилием солнечного света (Токио, Япония).

Примечательно: Масштабное остекление частного дома совсем не означает, что все любопытствующие соседи или прохожие будут заглядывать в окна, нарушая покой хозяев. Благодаря структуре самого здания, предусматривающей наличие глухой торцевой стены с восточной стороны, ограничивающей открытые террасы, удалось оградить владельцев от ненужного внимания со стороны чужих людей. Прохожие и соседи напротив смогут увидеть только то, как активное семейство занимается йогой, но это не должно их смущать, ведь плотная застройка Токио приучила рядовых японцев к мысли, что иметь максимально уединенное и изолированное пространство непозволительная роскошь, которой никогда не достигнуть.


От соседей жилое пространство огорожено глухой бетонной стеной (Токио, Япония).

Конечно же, наличие больших террас сразу на двух уровнях – это прекрасное дополнение к жилому пространству, но в случае с японским проектом, они забрали львиную долю строения, уменьшив полезную площадь. Чтобы компенсировать утраченную площадь, авторам проекта пришлось пойти на хитрость и предусмотреть скрытый этаж, который находится между первым и вторым этажами. Так называемое техническое пространство, высотой до 1,4 м выступает в роли гардеробной, где помещаются все вещи владельцев, для хранения которых не требуется устанавливать громоздкие шкафы в жилых зонах. При этом скрытым этаж является не только, если смотреть на дом снаружи. Если человек не знает, что таковой имеется в доме, никогда не найдет вход в него, поскольку он спрятан за выдвижными ступенями лестницы. Так что можно сказать, что «Маленький домик с большой террасой» имеет еще и тайную комнату.


В «тайную комнату» можно попасть только, выдвинув ступени лестницы (Токио, Япония).

Стоит отметить, что такая изобретательность архитекторов положительно сказалась не только на порядке и просторе в комнатах. Это решение позволило приподнять второй и третий уровни на достаточную высоту, что в свою очередь улучшило обзор и естественное освещение гостиной, спальни и самой террасы.
Несмотря на то, что внешне дом разделен на два уровня, по факту полноценных жилых этажей три, плюс то самое «техническое пространство». Высота потолков каждого их них увеличена за счет углубления цоколя практически на метр в землю и смещения уровней вне зависимости от разбивки той части, где предусмотрены открытые террасы.

Холл на нижнем уровне Little House with a Big Terrace. | Фото: spoon-tamago.com.

Прямо с порога владельцы попадают в большой холл, откуда можно добраться в ванную комнату, которую углубили на метр, чтобы увеличить высоту потолков, и подняться выше. В этой ванной комнате выделили уголок для установки стиральной машины и сушилки, так что можно считать, что в причудливом доме имеется еще и прачечная.

Открытая планировка второго уровня Little House with a Big Terrace. | Фото: spoon-tamago.com.

На втором, скрытом этаже, находится гардеробная. Третий этаж является общим жилым пространством с гостиной зоной у застекленной стены, столовой и благоустроенной кухней. Под лестницей, ведущей на последний уровень, спрятана еще одна ванная комната, часть которой в прямом смысле слова «парит» над землей, поскольку выступает за пределы основной конструкции дома.

Гостиная, столовая и кухня находятся на втором уровне Little House with a Big Terrace.


Спальная комната с рабочим пространством у окна (Токио, Япония).

А вот на четвертом уровне организована спальня. Она оказалась в самом выигрышном положении, ведь на такой высоте можно наслаждаться голубым или звездным небом, которое уже не закрывает соседний дом.

В продолжение темы, предлагаем заглянуть в другие японские дома, вдохновляющие на минимализм и рациональное использование пространства.

Видео нашего канала расскажет о том, почему в японских городах общественные туалеты имеют прозрачные стены:

Токио занимает всего 0,6% заселенной территории Японии, при этом столица является домом для 10% населения всей страны, что делает ее одним из самых густонаселенных мегаполисов мира, где недвижимость стоит нереальных денег, а архитекторы разрабатывают потрясающие проекты, пытаясь втиснуть жилое пространство даже в самый крошечный уголок. Не стал исключением и Такуро Ямамото со своей командой креативных дизайнеров и архитекторов, которые решили доказать, что максимальное жилое пространство не является единственным ключом к хорошему качеству жизни. «Маленький домик с большой террасой» – яркий пример японского минимализма и неожиданного распределения пространства (Токио). | Фото: divisare.com. Широко шагающий процесс урбанизации заставляет архитекторов изыскивать любые возможности, позволяющие обеспечить как можно больше горожан крышей над головой. Чем больше мегаполис, тем удивительнее проекты частных домов, которые пытаются втиснуть в самые крошечные участки земли без ущерба для комфорта их жильцов. Дальше всех в этом вопросе продвинулись японские дизайнеры, которым удается создавать потрясающие жилища, ориентированные на потребности заказчиков. Открытые террасы, объединенные с домом одной оболочкой, – главная изюминка проекта (Токио, Япония). | Фото: magazindomov.ru. Западная сторона «Маленького домика с большой террасой» имеет выступ, где находится ванная комната (Токио, Япония). | Фото: spoon-tamago.com. Особое внимание редакция Novate.ru хотела бы обратить на завершенный проект частного дома в районе Эдогава, в Токио, разработанный известным современным архитектором и основателем студии Takuro Yamamoto Architects, Такуро Ямамото. Речь идет о городской жилой структуре с говорящим названием «Маленький домик с большой террасой» (Little House with a Big Terrace). Своим проектом Ямамото вместе со своей креативной командой решил доказать, что «максимальное жилое пространство внутри здания не является единственным ключом к хорошему качеству жизни», особенно, если клиенту требуется достаточно места для занятий на свежем воздухе. План-чертеж «Маленького домика с большой террасой. | Фото: divisare.com. Стеклянный торец жилого пространства спрятан за глухой стеной террасы (Токио, Япония). Именно по этой причине созданию открытого пространства рядом с основной частью жилого дома уделили главное внимание. Причем террасы объединены с главным структурным ядром в единое целое, создавая гармоничный образ, бросающийся в глаза уже на подходе к дому. Открытые пролеты занимают значительную часть объекта, чтобы объем получившейся «ниши» не казался урезанным и неудобным. Благодаря этому террасу можно использовать и в качестве студии занятий йогой (на верхнем уровне), и как парковочное место для автомобиля (на нижнем). Террасу нижнего уровня можно использовать в качестве гаража или зоны отдыха (Токио, Япония). | Фото: magazindomov.ru. Открытые террасы объединены с жилыми зонами большими окнами и стеклянными дверями, что позволяет последним выглядеть более объемными и светлыми. Масштабное остекление, несмотря на высокую стоимость, не стало дополнительной статьей расходов на кондиционирование воздуха и обогрев помещений, поскольку использовались энергоэффективные стеклопакеты. Плюс ко всему окна были установлены в ключевых местах, что позволило улучшить качество пространств за счет неограниченного потока света и возможности естественного проветривания. Масштабное остекление обеспечивает жилые зоны обилием солнечного света (Токио, Япония). Примечательно: Масштабное остекление частного дома совсем не означает, что все любопытствующие соседи или прохожие будут заглядывать в окна, нарушая покой хозяев. Благодаря структуре самого здания, предусматривающей наличие глухой торцевой стены с восточной стороны, ограничивающей открытые террасы, удалось оградить владельцев от ненужного внимания со стороны чужих людей. Прохожие и соседи напротив смогут увидеть только то, как активное семейство занимается йогой, но это не должно их смущать, ведь плотная застройка Токио приучила рядовых японцев к мысли, что иметь максимально уединенное и изолированное пространство непозволительная роскошь, которой никогда не достигнуть. От соседей жилое пространство огорожено глухой бетонной стеной (Токио, Япония). Конечно же, наличие больших террас сразу на двух уровнях – это прекрасное дополнение к жилому пространству, но в случае с японским проектом, они забрали львиную долю строения, уменьшив полезную площадь. Чтобы компенсировать утраченную площадь, авторам проекта пришлось пойти на хитрость и предусмотреть скрытый этаж, который находится между первым и вторым этажами. Так называемое техническое пространство, высотой до 1,4 м выступает в роли гардеробной, где помещаются все вещи владельцев, для хранения которых не требуется устанавливать громоздкие шкафы в жилых зонах. При этом скрытым этаж является не только, если смотреть на дом снаружи. Если человек не знает, что таковой имеется в доме, никогда не найдет вход в него, поскольку он спрятан за выдвижными ступенями лестницы. Так что можно сказать, что «Маленький домик с большой террасой» имеет еще и тайную комнату. В «тайную комнату» можно попасть только, выдвинув ступени лестницы (Токио, Япония). Стоит отметить, что такая изобретательность архитекторов положительно сказалась не только на порядке и просторе в комнатах. Это решение позволило приподнять второй и третий уровни на достаточную высоту, что в свою очередь улучшило обзор и естественное освещение гостиной, спальни и самой террасы. Несмотря на то, что внешне дом разделен на два уровня, по факту полноценных жилых этажей три, плюс то самое «техническое пространство». Высота потолков каждого их них увеличена за счет углубления цоколя практически на метр в землю и смещения уровней вне зависимости от разбивки той части, где предусмотрены открытые террасы. Холл на нижнем уровне Little House with a Big Terrace. | Фото: spoon-tamago.com. Прямо с порога владельцы попадают в большой холл, откуда можно добраться в ванную комнату, которую углубили на метр, чтобы увеличить высоту потолков, и подняться выше. В этой ванной комнате выделили уголок для установки стиральной машины и сушилки, так что можно считать, что в причудливом доме имеется еще и прачечная. Открытая планировка второго уровня Little House with a Big Terrace. | Фото: spoon-tamago.com. На втором, скрытом этаже, находится гардеробная. Третий этаж является общим жилым пространством с гостиной зоной у застекленной стены, столовой и благоустроенной кухней. Под лестницей, ведущей на последний уровень, спрятана еще одна ванная комната, часть которой в прямом смысле слова «парит» над землей, поскольку выступает за пределы основной конструкции дома. Гостиная, столовая и кухня находятся на втором уровне Little House with a Big Terrace. Спальная комната с рабочим пространством у окна (Токио, Япония). А вот на четвертом уровне организована спальня. Она оказалась в самом выигрышном положении, ведь на такой высоте можно наслаждаться голубым или звездным небом, которое уже не закрывает соседний дом. В продолжение темы, предлагаем заглянуть в другие японские дома, вдохновляющие на минимализм и рациональное использование пространства. Видео нашего канала расскажет о том, почему в японских городах общественные туалеты имеют прозрачные стены:

Цитирование статьи, картинки - фото скриншот - Rambler News Service.
Иллюстрация к статье - Яндекс. Картинки.
Есть вопросы. Напишите нам.
Общие правила  поведения на сайте.


«anio.su»