Колоритный лесной домик посреди красивой дикой природы Таиланда - Архитектура и интерьер » Дизайна и строительство.
  • Контакты Аnio
«Дизайна и строительство» - проект видео новостей собранных на одном портале .. » Услуги » Другие услуги » Колоритный лесной домик посреди красивой дикой природы Таиланда - Архитектура и интерьер

Колоритный лесной домик посреди красивой дикой природы Таиланда - Архитектура и интерьер

11-12-2023, 00:00   Miln   Нашли ошибку?    Мы в Яндекс.Дзен




Колоритный лесной домик посреди красивой дикой природы Таиланда - Архитектура и интерьер



Все чаще современные путешественники отдают предпочтение эко-отелям, номера которых «потерялись» среди дикой природы. И не важно, будет это горное шале, лесная избушка, домик на дереве или пляжный домик – все они предлагают незабываемый отдых и полную «перезагрузку», если владельцы решат, что высокоскоростной интернет может помешать полноценному отдыху. Одним из замечательных примеров организации безмятежного отдыха можно считать и лесной домик Wood and Mountain Cabin, создатели которого расширили возможности отрешения от суетного мира среди безграничного лесного массива пригорода таиландского мегаполиса Чиангмай, обеспечив современный комфорт и атмосферу древних традиций.

Колоритный лесной домик посреди красивой дикой природы Таиланда (Wood and Mountain Cabin). | Фото: teenyabode.com.

Недалеко от Национального парка Дой Сутхеп, граничащего с пригородом таиландского мегаполиса Чиангмай завершилось строительство очаровательного лесного домика под названием Wood and Mountain Cabin (хижина «Дерево и гора»). Его появлению предшествовала довольно сложная кропотливая работа по изучению местности, свойств почвы, состава лесного массива и т. д., результаты которого напрямую повлияли на ее расположение и выбор материалов. За эстетику и комфорт отвечали специалисты архитектурной студии Sher Maker, которые в сотрудничестве с местными строителями и ремесленниками построили колоритный дом для отдыха, предназначенный для сдачи в аренду.

Специалисты провели массу экспериментов, прежде чем добиться той эстетики, которую хотели бы получить на выходе (Wood and Mountain Cabin, Таиланд).


Основным строительным материалом стала старая древесина, которую преобразовали с помощью японской технологии (Wood and Mountain Cabin, Таиланд).

Главным вдохновителем проекта Wood and Mountain Cabin стала не только живописная природа северной части Таиланда. Традиции народной архитектуры сыграли немаловажную роль в создании особой атмосферы и довольно комфортных условий проживания. И это несмотря на то, что лесной дом находится вдали от цивилизации и современной сети коммуникаций, которые бы значительно упростили задачу владельцам, пытающимся создать уютное жилище. Тем не менее это не помешало сделать все, чтобы современный человек не был лишен элементарных бытовых удобств, которые смогли обеспечить с помощью автономных систем жизнеобеспечения. При этом грамотно использовались наработки местных жителей, которые знают толк в строительстве комфортного жилья, грамотно располагая структуру на участке, используя натуральные материалы (в основном дерево), внедряя открытые пространства, частично закрытые стеклом. Все это как нельзя лучше приближает человека к природе, позволяет окружающей растительности наполнить помещения безмятежностью, тишиной и расслабляющей атмосферой.

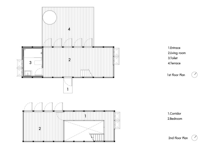
Планировка лесной хижины Wood and Mountain Cabin (проект студии Sher Maker). | Фото: teenyabode.com.


Три стороны лесной хижины полностью покрыты деревянными панелями (Wood and Mountain Cabin, Таиланд). | Фото: architizer.com.

Интересный факт от Novate.ru: В процессе строительства хижины специалисты студии Mountain Cabin экспериментировали с деревянными панелями, который планировали использовать для отделки стен. Все работы приводились в студийной мастерской, где в процессе собиралась целая коллекция образцов, из которой выбрали самые подходящие. Это было сделано лишь потому, что дизайнеры решили использовать древнюю японскую технологию обработки древесины – Shou Sugi Ban (сё суги бан), при которой особым образом производится обжиг древесностружечного материала. Этот способ значительно продлевает эксплуатационный период дерева, а также привносит особую эстетику в экстерьер здания. При этом дизайнеры оставили нетронутыми дефекты на досках, ведь их большая часть была вторсырьем. Такой выбор был сделан преднамеренно, чтобы подчеркнуть природное начало несмотря на то, что здание является делом рук человеческих.


Лицевая фасадная часть лесной хижины сделана из стекла, чтобы максимально открыть обзор на роскошное природное окружение (Wood and Mountain Cabin, Таиланд). | Фото: architizer.com.


Сразу с порога посетители попадают в гостиную (Wood and Mountain Cabin, Таиланд).

Учитывая повышенную влажность в регионе и тот факт, что разработчики были нацелены на то, чтобы сохранить экосистему, двухэтажную хижину установили на сваи, ну а основной каркас сделали из стали, который обшили обожженной древесиной. Эти материалы являются экологически чистыми, что совсем немаловажно при строительстве загородных объектов в природной зоне. Чтобы максимально открыть обзор на живописный горный массив, одна стена была сделана стеклянной во всю высоту дома. Несмотря на такую открытость в некоторых зонах предусмотрена максимальная конфиденциальность, хотя это никак не мешает любоваться природным окружением, благодаря тем же скрытым люкам, пропускающим солнечный свет внутрь ванной комнаты, например.

Зона кухни-столовой в лесной хижине Wood and Mountain Cabin (Таиланд).


Яркая ванная комната с тропическим душем ничуть не хуже, нежели в номерах фешенебельных отелей (Wood and Mountain Cabin, Таиланд).

Если говорить об интерьере, то дизайнеры отдали предпочтение минималистичной и современной обстановке, не забыв о необходимых удобствах, составляющих основу комфортного проживания. Сразу у входа в лесную хижину предусмотрено помещение открытой планировки, где обустроена гостиная, кухня-столовая и ванная комната, которая может похвастаться яркой обстановкой и тропическим душем.

Спальня находится на втором этаже (Wood and Mountain Cabin, Таиланд). | Фото: designboom.com.


На открытой террасе установили ванну, чтобы гости могли наслаждаться водными процедурами прямо на свежем воздухе (Wood and Mountain Cabin, Таиланд).

На второй уровень приведет деревянная лестница. Там находится просторная спальная комната с двуспальной кроватью. Как и в случае с гостиной, главным украшением интерьера является натуральное дерево, обожженное по технологии Shou Sugi Ban и сама природа за окном. Ведь, что может быть лучше нетронутых лесов и гор, которые являются идеальным местом, чтобы сбежать от шума и суеты повседневной жизни и хоть на время соединиться с природой. Особенно, если принимать ванну на открытой террасе, которую можно использовать как зону отдыха или в качестве летней столовой. А вот для особо романтичных гостей недалеко от домика организована лаундж-зона с костровой чашей, где можно приятно проводить вечера.
В продолжение темы предлагаем заглянуть в другие крошечные дома и лесные хижины, которые станут идеальным местом для отдыха на природе.

А вот познавательное видео нашего канала:




Все чаще современные путешественники отдают предпочтение эко-отелям, номера которых «потерялись» среди дикой природы. И не важно, будет это горное шале, лесная избушка, домик на дереве или пляжный домик – все они предлагают незабываемый отдых и полную «перезагрузку», если владельцы решат, что высокоскоростной интернет может помешать полноценному отдыху. Одним из замечательных примеров организации безмятежного отдыха можно считать и лесной домик Wood and Mountain Cabin, создатели которого расширили возможности отрешения от суетного мира среди безграничного лесного массива пригорода таиландского мегаполиса Чиангмай, обеспечив современный комфорт и атмосферу древних традиций. Колоритный лесной домик посреди красивой дикой природы Таиланда (Wood and Mountain Cabin). | Фото: teenyabode.com. Недалеко от Национального парка Дой Сутхеп, граничащего с пригородом таиландского мегаполиса Чиангмай завершилось строительство очаровательного лесного домика под названием Wood and Mountain Cabin (хижина «Дерево и гора»). Его появлению предшествовала довольно сложная кропотливая работа по изучению местности, свойств почвы, состава лесного массива и т. д., результаты которого напрямую повлияли на ее расположение и выбор материалов. За эстетику и комфорт отвечали специалисты архитектурной студии Sher Maker, которые в сотрудничестве с местными строителями и ремесленниками построили колоритный дом для отдыха, предназначенный для сдачи в аренду. Специалисты провели массу экспериментов, прежде чем добиться той эстетики, которую хотели бы получить на выходе (Wood and Mountain Cabin, Таиланд). Основным строительным материалом стала старая древесина, которую преобразовали с помощью японской технологии (Wood and Mountain Cabin, Таиланд). Главным вдохновителем проекта Wood and Mountain Cabin стала не только живописная природа северной части Таиланда. Традиции народной архитектуры сыграли немаловажную роль в создании особой атмосферы и довольно комфортных условий проживания. И это несмотря на то, что лесной дом находится вдали от цивилизации и современной сети коммуникаций, которые бы значительно упростили задачу владельцам, пытающимся создать уютное жилище. Тем не менее это не помешало сделать все, чтобы современный человек не был лишен элементарных бытовых удобств, которые смогли обеспечить с помощью автономных систем жизнеобеспечения. При этом грамотно использовались наработки местных жителей, которые знают толк в строительстве комфортного жилья, грамотно располагая структуру на участке, используя натуральные материалы (в основном дерево), внедряя открытые пространства, частично закрытые стеклом. Все это как нельзя лучше приближает человека к природе, позволяет окружающей растительности наполнить помещения безмятежностью, тишиной и расслабляющей атмосферой. Планировка лесной хижины Wood and Mountain Cabin (проект студии Sher Maker). | Фото: teenyabode.com. Три стороны лесной хижины полностью покрыты деревянными панелями (Wood and Mountain Cabin, Таиланд). | Фото: architizer.com. Интересный факт от Novate.ru: В процессе строительства хижины специалисты студии Mountain Cabin экспериментировали с деревянными панелями, который планировали использовать для отделки стен. Все работы приводились в студийной мастерской, где в процессе собиралась целая коллекция образцов, из которой выбрали самые подходящие. Это было сделано лишь потому, что дизайнеры решили использовать древнюю японскую технологию обработки древесины – Shou Sugi Ban (сё суги бан), при которой особым образом производится обжиг древесностружечного материала. Этот способ значительно продлевает эксплуатационный период дерева, а также привносит особую эстетику в экстерьер здания. При этом дизайнеры оставили нетронутыми дефекты на досках, ведь их большая часть была вторсырьем. Такой выбор был сделан преднамеренно, чтобы подчеркнуть природное начало несмотря на то, что здание является делом рук человеческих. Лицевая фасадная часть лесной хижины сделана из стекла, чтобы максимально открыть обзор на роскошное природное окружение (Wood and Mountain Cabin, Таиланд). | Фото: architizer.com. Сразу с порога посетители попадают в гостиную (Wood and Mountain Cabin, Таиланд). Учитывая повышенную влажность в регионе и тот факт, что разработчики были нацелены на то, чтобы сохранить экосистему, двухэтажную хижину установили на сваи, ну а основной каркас сделали из стали, который обшили обожженной древесиной. Эти материалы являются экологически чистыми, что совсем немаловажно при строительстве загородных объектов в природной зоне. Чтобы максимально открыть обзор на живописный горный массив, одна стена была сделана стеклянной во всю высоту дома. Несмотря на такую открытость в некоторых зонах предусмотрена максимальная конфиденциальность, хотя это никак не мешает любоваться природным окружением, благодаря тем же скрытым люкам, пропускающим солнечный свет внутрь ванной комнаты, например. Зона кухни-столовой в лесной хижине Wood and Mountain Cabin (Таиланд). Яркая ванная комната с тропическим душем ничуть не хуже, нежели в номерах фешенебельных отелей (Wood and Mountain Cabin, Таиланд). Если говорить об интерьере, то дизайнеры отдали предпочтение минималистичной и современной обстановке, не забыв о необходимых удобствах, составляющих основу комфортного проживания. Сразу у входа в лесную хижину предусмотрено помещение открытой планировки, где обустроена гостиная, кухня-столовая и ванная комната, которая может похвастаться яркой обстановкой и тропическим душем. Спальня находится на втором этаже (Wood and Mountain Cabin, Таиланд). | Фото: designboom.com. На открытой террасе установили ванну, чтобы гости могли наслаждаться водными процедурами прямо на свежем воздухе (Wood and Mountain Cabin, Таиланд). На второй уровень приведет деревянная лестница. Там находится просторная спальная комната с двуспальной кроватью. Как и в случае с гостиной, главным украшением интерьера является натуральное дерево, обожженное по технологии Shou Sugi Ban и сама природа за окном. Ведь, что может быть лучше нетронутых лесов и гор, которые являются идеальным местом, чтобы сбежать от шума и суеты повседневной жизни и хоть на время соединиться с природой. Особенно, если принимать ванну на открытой террасе, которую можно использовать как зону отдыха или в качестве летней столовой. А вот для особо романтичных гостей недалеко от домика организована лаундж-зона с костровой чашей, где можно приятно проводить вечера. В продолжение темы предлагаем заглянуть в другие крошечные дома и лесные хижины, которые станут идеальным местом для отдыха на природе. А вот познавательное видео нашего канала:

Цитирование статьи, картинки - фото скриншот - Rambler News Service.
Иллюстрация к статье - Яндекс. Картинки.
Есть вопросы. Напишите нам.
Общие правила  поведения на сайте.


«anio.su»