Бразильские архитекторы превратили узкий и полуразваленный дом в современное жилище - Архитектура и интерьер » Дизайна и строительство.
  • Контакты Аnio
«Дизайна и строительство» - проект видео новостей собранных на одном портале .. » Услуги » Другие услуги » Бразильские архитекторы превратили узкий и полуразваленный дом в современное жилище - Архитектура и интерьер

Бразильские архитекторы превратили узкий и полуразваленный дом в современное жилище - Архитектура и интерьер

20-11-2023, 00:00   Михаил   Нашли ошибку?    Мы в Яндекс.Дзен




Бразильские архитекторы превратили узкий и полуразваленный дом в современное жилище - Архитектура и интерьер



Казалось бы, что еще надо для молодоженов, когда им вручают ключи от дома, расположенного в одном из густонаселенных городов мира. Но не всегда столь щедрый подарок может вызывать радость, случается и такое, что дом оказывается настоящей развалиной, затиснутой между другими строениям так, что и развернуться негде. Речь идет о «счастливчиках» из бразильского города Сан-Паулу, которым достался полуразрушенный дом в старом рабочем районе шириной всего 4 метра. Но молодежь совсем не расстроилась, а принялась за кардинальную трансформацию, которая произвела фурор на всю округу.


Стать владельцем полуразрушенного родового гнезда в крупном городе не так страшно, как кажется на первый взгляд (Piraja House, Сан-Паулу). | Фото: homedesignlover.com.

Когда дело доходит до того, жить среди развалин в темном полуразрушенном здании или решиться на кардинальные изменения, большинство активных людей выберет второй вариант и точно не ошибется. Особенно если ветхий дом достается в подарок и находится он в одном из самых густонаселенных городов мира, в бразильском финансовом центре, в Сан-Паулу. Так повезло молодоженам, которым на свадьбу подарили старый семейный дом, в нем жило три поколения семьи молодого супруга. Несмотря на то, что родовое гнездо было более чем в плачевном состоянии, молодежь не сильно-то и расстроилась, ведь супруги приняли решение сделать полную перестройку дома.


Учитывая аварийное состояние дома и его нерациональную планировку, его правильней было снести и построить заново (Piraja House, Сан-Паулу).

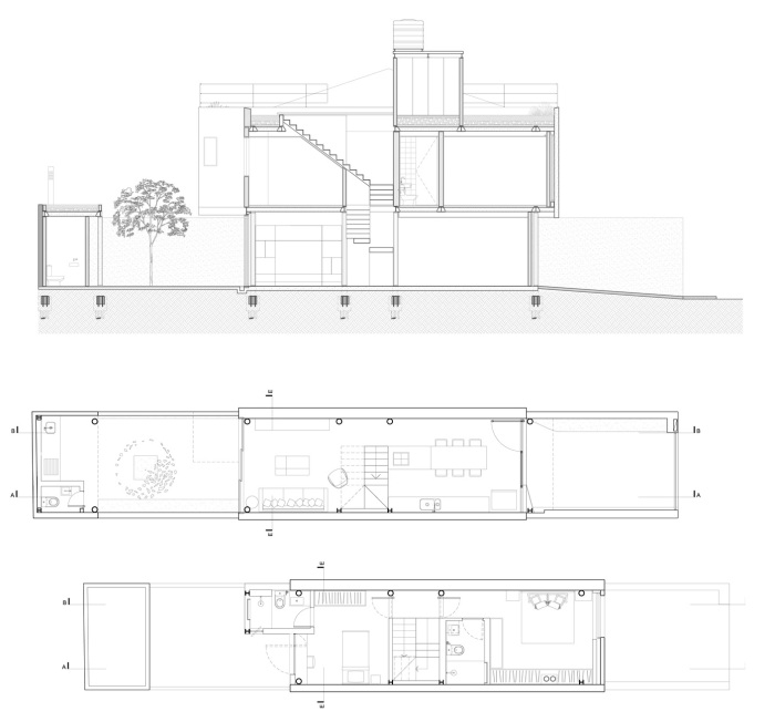
Со своими пожеланиями они обратились к специалистам местной архитектурно-дизайнерской студии Estudio BRA Arquitetura, которым предстояла очень сложная работа, ведь Piraja House (Дом Пираджа) представлял собой ветхое строение шириной всего 4 метра, в глубину же он уходил на 24 м. Нестандартная геометрия здания была обусловлена имеющимся участком, зажатым между двумя соседними домами, так что фантазии разгуляться было негде.

От старого здания остались лишь боковые стены, граничащие с соседними строениями (Piraja House, Бразилия). | Фото: homedesignlover.com.


Планировка дома полностью изменилась, что позволило организовать современное жилое пространство (проект Piraja House от Estudio BRA Arquitetura).

Учитывая, что старое здание в рабочем поселке имело очень непрактичную планировку, низкие потолки и маленькие окна, которых не хватало для освещения узких и длинных помещений, то ничего больше не оставалось делать, как демонтировать объект. Было решено не трогать лишь боковые стены, примыкающие к соседним зданиям, поскольку в свое время они их сделали довольно основательно, и они смогут простоять еще не один десяток лет. А вот планировка нового уже дома должна была в полной мере соответствовать потребностям современной жизни молодых людей.

Чтобы не возводить дополнительные стены, опорную конструкцию для второго этажа и крыши сделали из металла (Piraja House, Сан-Паулу).


Крошечный участок перед домом огородили стенами, чтобы сделать дворик перед входом (Piraja House, Бразилия). | Фото: floornature.com.

Благодаря стараниям авторам проекта удалось построить практически трехэтажный дом, состоящий из цокольного этажа, жилого пространства второго уровня и функциональной крыши, где можно проводить свободное время, заниматься выращиванием зелени и овощей, а также заниматься стиркой. После завершения кардинальной реконструкции вместо сетчатых заборов, разделяющих мини-дворы, пригодные только для парковки одного автомобиля, появились глухие стены, которые обеспечивают приватность и позволяют обустроить небольшой дворик, где можно высадить цветы и обеспечить безопасную прогулку для собачки, ставшей членом молодой семьи. Пройдя этот дворик, владельцы обновленной недвижимости теперь попадают в светлое пространство ...кухни-столовой, расположенной сразу перед стеклянной стеной входной части дома (ее спрятали за массивной дверью, изготовленной из массива дерева, чтобы предотвратить проникновение непрошенных гостей).

Сразу у входа в дом находится кухня-столовая (Piraja House, Сан-Паулу).


Ну зачем прихожая в узком доме, когда из столовой и кухни открывается такой обзор? (Piraja House, Бразилия).

Неожиданная как для жилого пространства планировка ничуть не смущает молодоженов, которые решили, что у одной стены будет установлен мебельный гарнитур, сделанный на заказ, а остров можно использовать и для принятия пищи, и в качестве рабочей зоны, ведь хозяйке куда приятней наблюдать, что происходит за пределами кухни, тем более что эта зона заключена между стеклянными раздвижными дверями во всю стену. Проход в остальную часть дома осуществляется вдоль противоположной стены.


Уютная гостиная находится перед выходом во внутренний дворик (Piraja House, Сан-Паулу).

На этот раз в доме нет массы перегородок и разделяющих стен, поэтому внутреннее пространство не кажется таким темным, узким и затиснутым между стенами. Открытая планировка, обилие окон и стеклянные двери, ведущие во внутренний дворик, белые стены, оригинальная лестница из тонких листов металла – все это помогает зрительно расширить дом, делая его более пригодным для комфортной жизни. Неординарным во всех отношениях проектом, за кухней предусмотрена уютная гостиная и отделена она лишь лестницей, которая совсем не загромождает пространство, а лишь разграничивает зоны.


В обновленном доме теперь имеется внутренний дворик с зоной барбекю и летней кухней (Piraja House, Сан-Паулу).

Интересные внедрения: Еще одним смелым решением стала организация внутреннего двора, за счет уменьшения длины самого строения. На открытом пространстве посадили уже взрослое дерево джабутикабы (Myrciaria cauliflora), которая обеспечивает прекрасную тень и дарит владельцам сладкие плоды. За ним построили небольшую летнюю кухню, позволяющую готовить практически на улице домашние вкусности и устраивать романтические ужины под звездным небом. Здесь же предусмотрена зона барбекю, так что получится еще и запекать овощи с мясом/птицей на раскаленных углях, что очень вкусно и полезно.


Оригинальная лестница поможет добраться и до спальных комнат, и на крышу (Piraja House, Сан-Паулу).


В спальне с окном, выходящим на улицу, имеется балкон и деревянные ставни (Piraja House, Бразилия).

А вот две спальни и две ванные комнаты расположены на втором этаже, куда можно подняться по лестнице, состоящей из двух независимых элементов: полированного бетона на первом этаже и гнутого листового металла (два пролета выше). Одна из спальных комнат имеет окно с балконом, выходящие на улицу, что заставило использовать деревянные ставни, позволяющие обеспечить полную конфиденциальность. Они также затеняют внутреннее пространство от палящих солнечных лучей в особо жаркие дни. Вторая же спальня может похвастаться потолочными люками (как и ванные комнаты), так что сон и принятие ванны/душа под звездным небом привнесет в жизнь молодых супругов больше романтики. Если говорить об оформлении интерьеров, то белый цвет остался в приоритете, а более чем скромная мебель размещена так, чтобы не загромождать узкое пространство, ведь фактический объем больше никак не стал.


В оформлении комнат нет ничего лишнего или крупногабаритного, чтобы могло «украсть» пространство (Piraja House, Сан-Паулу). | Фото: floornature.com.


Функциональная крыша стала не только местом отдыха, здесь имеется еще и прачечная (Piraja House, Сан-Паулу). | Фото: contemporist.com.

Последний пролет лестницы поможет добраться и до крыши, за автоматическим люком которого находится многофункциональное пространство. Крыша изначально задумывалась, как неотъемлемый элемент дома и была в свою очередь разделена на разные зоны: деревянную террасу, солярий, зеленую лужайку и цветник с огородом, где помимо декоративной травы и цветов можно выращивать зелень, и даже некоторые овощи. При этом разработчики Estudio BRA Arquitectura решили пристроить небольшой технический объем, в котором разместилась прачечная, чтобы не отнимать ценное пространство у жилых комнат.


На крыше обустроили солярий, лужайку для отдыха и даже огород с клумбой (Piraja House, Бразилия).

Авторы Novate.ru хотели бы особо подчеркнуть, что не нужно иметь гектары земли в природных заповедниках или за городом, чтобы обзавестись уютным и современным домом с благоухающими цветниками и лужайками. Даже узкий домик в крупном городе (такой разваленный как Piraja House) может стать уютным жилищем, где можно расслабиться под тенью дерева, наслаждаясь полезной вкусной едой, запеченной на раскаленных углях, наблюдать за звездным небом, не вставая с удобной кровати или принимая теплую ванну.
Не только старый дом может стать источником вдохновения и тем самым толчком к преобразованиям, улучшающим качество жизни. Креативное семейство архитекторов из Мадрида, так мечтало о загородной резиденции, что решилось на трансформацию старой конюшни в живописной сельской местности.

Из нашего видео можно узнать, зачем изобретательные хозяйки наклеивают «пупырку» на окна:


Казалось бы, что еще надо для молодоженов, когда им вручают ключи от дома, расположенного в одном из густонаселенных городов мира. Но не всегда столь щедрый подарок может вызывать радость, случается и такое, что дом оказывается настоящей развалиной, затиснутой между другими строениям так, что и развернуться негде. Речь идет о «счастливчиках» из бразильского города Сан-Паулу, которым достался полуразрушенный дом в старом рабочем районе шириной всего 4 метра. Но молодежь совсем не расстроилась, а принялась за кардинальную трансформацию, которая произвела фурор на всю округу. Стать владельцем полуразрушенного родового гнезда в крупном городе не так страшно, как кажется на первый взгляд (Piraja House, Сан-Паулу). | Фото: homedesignlover.com. Когда дело доходит до того, жить среди развалин в темном полуразрушенном здании или решиться на кардинальные изменения, большинство активных людей выберет второй вариант и точно не ошибется. Особенно если ветхий дом достается в подарок и находится он в одном из самых густонаселенных городов мира, в бразильском финансовом центре, в Сан-Паулу. Так повезло молодоженам, которым на свадьбу подарили старый семейный дом, в нем жило три поколения семьи молодого супруга. Несмотря на то, что родовое гнездо было более чем в плачевном состоянии, молодежь не сильно-то и расстроилась, ведь супруги приняли решение сделать полную перестройку дома. Учитывая аварийное состояние дома и его нерациональную планировку, его правильней было снести и построить заново (Piraja House, Сан-Паулу). Со своими пожеланиями они обратились к специалистам местной архитектурно-дизайнерской студии Estudio BRA Arquitetura, которым предстояла очень сложная работа, ведь Piraja House (Дом Пираджа) представлял собой ветхое строение шириной всего 4 метра, в глубину же он уходил на 24 м. Нестандартная геометрия здания была обусловлена имеющимся участком, зажатым между двумя соседними домами, так что фантазии разгуляться было негде. От старого здания остались лишь боковые стены, граничащие с соседними строениями (Piraja House, Бразилия). | Фото: homedesignlover.com. Планировка дома полностью изменилась, что позволило организовать современное жилое пространство (проект Piraja House от Estudio BRA Arquitetura). Учитывая, что старое здание в рабочем поселке имело очень непрактичную планировку, низкие потолки и маленькие окна, которых не хватало для освещения узких и длинных помещений, то ничего больше не оставалось делать, как демонтировать объект. Было решено не трогать лишь боковые стены, примыкающие к соседним зданиям, поскольку в свое время они их сделали довольно основательно, и они смогут простоять еще не один десяток лет. А вот планировка нового уже дома должна была в полной мере соответствовать потребностям современной жизни молодых людей. Чтобы не возводить дополнительные стены, опорную конструкцию для второго этажа и крыши сделали из металла (Piraja House, Сан-Паулу). Крошечный участок перед домом огородили стенами, чтобы сделать дворик перед входом (Piraja House, Бразилия). | Фото: floornature.com. Благодаря стараниям авторам проекта удалось построить практически трехэтажный дом, состоящий из цокольного этажа, жилого пространства второго уровня и функциональной крыши, где можно проводить свободное время, заниматься выращиванием зелени и овощей, а также заниматься стиркой. После завершения кардинальной реконструкции вместо сетчатых заборов, разделяющих мини-дворы, пригодные только для парковки одного автомобиля, появились глухие стены, которые обеспечивают приватность и позволяют обустроить небольшой дворик, где можно высадить цветы и обеспечить безопасную прогулку для собачки, ставшей членом молодой семьи. Пройдя этот дворик, владельцы обновленной недвижимости теперь попадают в светлое пространство .кухни-столовой, расположенной сразу перед стеклянной стеной входной части дома (ее спрятали за массивной дверью, изготовленной из массива дерева, чтобы предотвратить проникновение непрошенных гостей). Сразу у входа в дом находится кухня-столовая (Piraja House, Сан-Паулу). Ну зачем прихожая в узком доме, когда из столовой и кухни открывается такой обзор? (Piraja House, Бразилия). Неожиданная как для жилого пространства планировка ничуть не смущает молодоженов, которые решили, что у одной стены будет установлен мебельный гарнитур, сделанный на заказ, а остров можно использовать и для принятия пищи, и в качестве рабочей зоны, ведь хозяйке куда приятней наблюдать, что происходит за пределами кухни, тем более что эта зона заключена между стеклянными раздвижными дверями во всю стену. Проход в остальную часть дома осуществляется вдоль противоположной стены. Уютная гостиная находится перед выходом во внутренний дворик (Piraja House, Сан-Паулу). На этот раз в доме нет массы перегородок и разделяющих стен, поэтому внутреннее пространство не кажется таким темным, узким и затиснутым между стенами. Открытая планировка, обилие окон и стеклянные двери, ведущие во внутренний дворик, белые стены, оригинальная лестница из тонких листов металла – все это помогает зрительно расширить дом, делая его более пригодным для комфортной жизни. Неординарным во всех отношениях проектом, за кухней предусмотрена уютная гостиная и отделена она лишь лестницей, которая совсем не загромождает пространство, а лишь разграничивает зоны. В обновленном доме теперь имеется внутренний дворик с зоной барбекю и летней кухней (Piraja House, Сан-Паулу). Интересные внедрения: Еще одним смелым решением стала организация внутреннего двора, за счет уменьшения длины самого строения. На открытом пространстве посадили уже взрослое дерево джабутикабы (Myrciaria cauliflora), которая обеспечивает прекрасную тень и дарит владельцам сладкие плоды. За ним построили небольшую летнюю кухню, позволяющую готовить практически на улице домашние вкусности и устраивать романтические ужины под звездным небом. Здесь же предусмотрена зона барбекю, так что получится еще и запекать овощи с мясом/птицей на раскаленных углях, что очень вкусно и полезно. Оригинальная лестница поможет добраться и до спальных комнат, и на крышу (Piraja House, Сан-Паулу). В спальне с окном, выходящим на улицу, имеется балкон и деревянные ставни (Piraja House, Бразилия). А вот две спальни и две ванные комнаты расположены на втором этаже, куда можно подняться по лестнице, состоящей из двух независимых элементов: полированного бетона на первом этаже и гнутого листового металла (два пролета выше). Одна из спальных комнат имеет окно с балконом, выходящие на улицу, что заставило использовать деревянные ставни, позволяющие обеспечить полную конфиденциальность. Они также затеняют внутреннее пространство от палящих солнечных лучей в особо жаркие дни. Вторая же спальня может похвастаться потолочными люками (как и ванные комнаты), так что сон и принятие ванны/душа под звездным небом привнесет в жизнь молодых супругов больше романтики. Если говорить об оформлении интерьеров, то белый цвет остался в приоритете, а более чем скромная мебель размещена так, чтобы не загромождать узкое пространство, ведь фактический объем больше никак не стал. В оформлении комнат нет ничего лишнего или крупногабаритного, чтобы могло «украсть» пространство (Piraja House, Сан-Паулу). | Фото: floornature.com. Функциональная крыша стала не только местом отдыха, здесь имеется еще и прачечная (Piraja House, Сан-Паулу). | Фото: contemporist.com. Последний пролет лестницы поможет добраться и до крыши, за автоматическим люком которого находится многофункциональное пространство. Крыша изначально задумывалась, как неотъемлемый элемент дома и была в свою очередь разделена на разные зоны: деревянную террасу, солярий, зеленую лужайку и цветник с огородом, где помимо декоративной травы и цветов можно выращивать зелень, и даже некоторые овощи. При этом разработчики Estudio BRA Arquitectura решили пристроить небольшой технический объем, в котором разместилась прачечная, чтобы не отнимать ценное пространство у жилых комнат. На крыше обустроили солярий, лужайку для отдыха и даже огород с клумбой (Piraja House, Бразилия). Авторы Novate.ru хотели бы особо подчеркнуть, что не нужно иметь гектары земли в природных заповедниках или за городом, чтобы обзавестись уютным и современным домом с благоухающими цветниками и лужайками. Даже узкий домик в крупном городе (такой разваленный как Piraja House) может стать уютным жилищем, где можно расслабиться под тенью дерева, наслаждаясь полезной вкусной едой, запеченной на раскаленных углях, наблюдать за звездным небом, не вставая с удобной кровати или принимая теплую ванну. Не только старый дом может стать источником вдохновения и тем самым толчком к преобразованиям, улучшающим качество жизни. Креативное семейство архитекторов из Мадрида, так мечтало о загородной резиденции, что решилось на трансформацию старой конюшни в живописной сельской местности. Из нашего видео можно узнать, зачем изобретательные хозяйки наклеивают «пупырку» на окна:

Цитирование статьи, картинки - фото скриншот - Rambler News Service.
Иллюстрация к статье - Яндекс. Картинки.
Есть вопросы. Напишите нам.
Общие правила  поведения на сайте.


«anio.su»