Авторы из Arbejazz architecture studio провели реконструкцию в Тель-Авиве: одноэтажный таунхаус превратили в трехэтажный, увеличив площадь более чем вчетверо. Проект они назвали SW House.
Здание было построено в 1950-х годах как дешевое жилье для рабочего класса со всеми вытекающими последствиями: один этаж, площадь 65 кв. метров. Сегодня этот район Тель-Авива переживает масштабное обновление, что позволяет жителям реконструировать дома: власти легко дают разрешение на строительство.
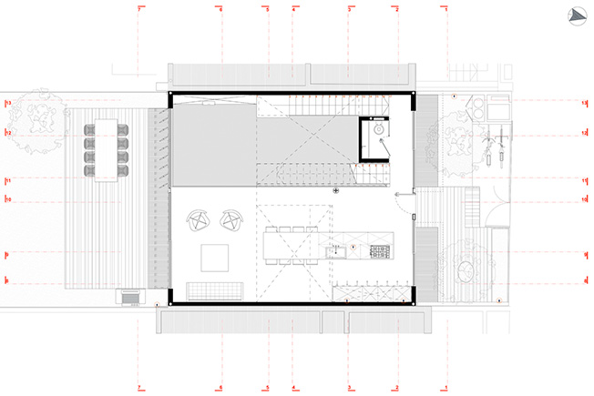
Усилиями Arbejazz architecture studioодноуровневый блок был превращен в трехуровневый, а площадь увеличена до 290 кв. метров. Архитекторы вдохновлялись окружением. Дом расположен в зеленом районе, с обширными пешеходными зонами и ограниченным доступом транспорта. Через сосновую рощу дорога ведет к дому.
Авторы спроектировали узкий, но вытянутый объем, который простирается между фасадами, обращенными на север и юг, и вступает в диалог с окружающей средой. Физическая связь интерьера с природой достигается с помощью многочисленных точек обзора. У северного фасада на уровне входа разбит сад, который служит продолжением ведущей к дому рощи.
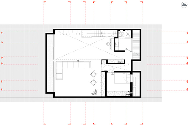
Есть сад и у южного фасада, именно с этой стороны архитекторы расположили «драматическое ядро» дома, которое они акцентировали глубоким синим фоном. Авторы предложили открытую циркуляцию, установив прозрачные сетчатые ограждения лестниц, создали своего рода мост, что способствует интересным взаимотношениям между всеми уровнями.
Архитекторы тщательным образом изучили образ жизни своих клиентов. И на его основе разработали широкий спектр сценариев, как для будней, так и для праздников. Как говорят сами авторы, они «прибегли к инструментарию поэзии и театральной среды, вдохновлялись интерьерами с гравюр Пиранези».
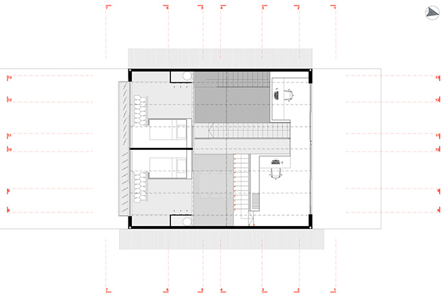
В приватных пространствах акцент сделан на конфиденциальности и гибкости: каждое помещение оснащено вертикальными жалюзи, которые позволяют контролировать микроклимат и выстраивать отношения с окружающим пейзажем. В южной части дома доминирует молодое поколение. Детские комнаты объединены галерей с видом на сад и «драматическое ядро» дома.
Главная спальня расположена в северной части, откуда открывается панорама сосновой рощи. Под скатной крышей расположена открытая рабочая зона, котрая обеспечивает вид на «ядро».
Arbejazz architecture studio основал в 2001 году архитектор и дизайнер Ади Вайнберг, собрав вокруг себя молодых и амбициозных проектировщиков. Студия базируется в Тель-Авиве, строит в Израиле и Европе.




























