Архитекторы бюро Kapsimalis Architects провели реконструкцию на Санторини, в деревне Имеровигли: бывшее складское здание превратили в летнюю резиденцию.
Греческий остров Санторини — одно из самых романтичных мест на земле. Здесь модно устраивать свадьбы и проводить медовый месяц. Остров славится пейзажами, невероятно яркими закатами и пляжами с вулканическим песком. Не меньше впечатляет архитектура. Старые белые дома с синими крышами, лепящиеся на скалах, известны по многочисленным фотографиям в инстаграме, и в жизни они оказываются такими же «инстаграмными».
Как в таком самобытном месте создать жилище, которое несет в себе традиционный стиль, в то же время расширяет его выразительные возможности? Бюро Kapsimalis Architects базируется и много строит на Санторини — его участники знают ответ.
«Грубый вулканический ландшафт, смена пейзажей, разнообразие материалов, старая архитектура и изменчивые погодные условия оказывают огромное влияние на процесс проектирования, — рассказывают авторы. — Каждое наше архитектурное решение связано с окружающей средой. Особенности и проблемы этого острова — искра, которая порождает яркие формы. Мы стремимся сделать здания неотъемлемой частью ландшафта».
Бывший склад представлял собой длинную узкую структуру, Kapsimalis Architects превратили ее в современный комплекс, состоящий из нескольких отдельных блоков с террасами, бассейнами и площадками для отдыха. У бассейнов устроены обеденные зоны, тенты защищают от палящего солнца.
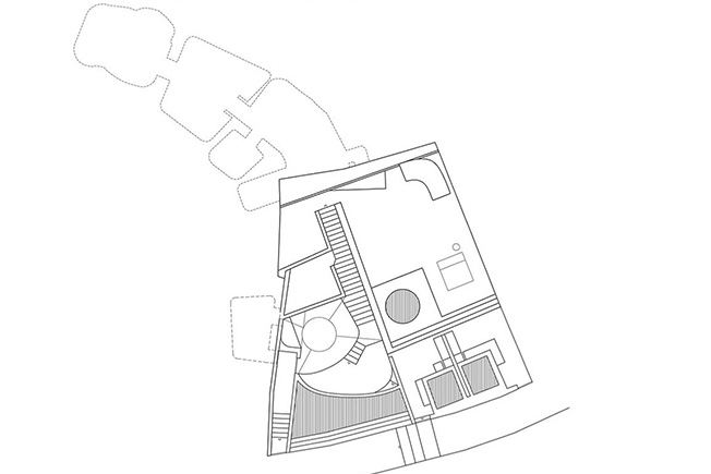
Если смотреть сверху, то резиденция напоминает лабиринт. Разнообразие пространств поддерживает визуальный интерес на каждом шагу. Однако не отвелекает от главной достопримечательности — просторов Эгейского моря.
Криволинейные стены и сводчатые потолки определяют интерьер. Они резко контрастируют с жесткими углами, из которых состоят открытые террасы и лестницы.
Мебели минимум, в основном она встроенная, но ее достаточно для комфорта. Ведь основную часть времени обитатели резиденции проводят на свежем воздухе.
Бюро Kapsimalis Architects основали выпускники Национального технического университета в Афинах, архитекторы Александро Капсималис (р. 1986) и Марианна Капсимали (р. 1988). На их счету немало интересных проектов на греческом острове: частные виллы, отели, обновленные винодельни и даже реконструкция церкви Святого Иоанна.


















