Новый аэропорт Ростова-на-Дону Платов за несколько лет существования успел прославиться, во-первых, благодаря архитектурной концепции с впечатляющей волнообразной крышей от британского бюро Twelve Architects, а во-вторых — эффектными интерьерами.
Студия Nefa Architects спроектировала в аэропорту бизнес-терминал общей площадью более 3500 кв. метров. Заказчиком в рамках программы комплексного развития крупных авиацентров России выступил холдинг «Аэропорты Регионов».
В ростовской степи в разные времена проживало множество народностей — хазары и греки, скифы и сарматы. Как дань уважения богатой истории и культурным особенностям региона, наружный контур здания архитекторы решили сделать в виде колоннады, но не в классическом, а современном прочтении. Чтобы конструкция не выглядела слишком громоздкой и серьезной, ее ритм сделали свободным, нерегулярным.
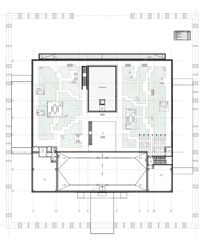
За наружной колоннадой находится стеклянный параллелограмм. В центре объема расположен внутренний двор с лестницей, ведущей на эксплуатируемую кровлю. Здесь расположена открытая площадка с садом, шезлонгами, беседками и баром. Таким образом архитекторы связали воедино интерьер и экстерьер — одно пространство плавно перетекает в другое.
Здание проектировалось с нуля, поэтому архитекторам удалось максимально правильно и логично зонировать помещения. Основное предназначение зала — создание комфортной обстановки для вылетающих пассажиров, поэтому зонам для отдыха уделено особое внимание.
Функционально пространство включает зону вылета со стойкой ресепшен, залами ожидания, кафе, отдельными комнатами для переговоров и отдыха, а также помещениями различных служб (пограничной и таможенной).
Из зоны прилета с атриумом можно подняться с помощью лифта в сад на кровле. Отдельная зона официальных лиц и делегаций оборудована большим залом заседаний, здесь также предусмотрен кабинет губернатора.
Во время строительства на месте будущего аэропорта был обнаружен курган сарматов, в котором обнаружили клад с золотыми украшениями. Именно эта находка продиктовала концепцию интерьера. Во внутреннем пространстве акцентным цветом стал золотой.
Латунные светильники, а также стеклянные колонны во входном холле — яркий запоминающийся акцент был создан совместно с партнерами Nickel Collective. Блоки мурманского венецианского стекла смонтированы на натянутых тросах и оборудованы интегрированной подсветкой.
Помимо декоративной роли, колонны также функционально отделяют входную зону от залов ожидания. За счет открытого внутреннего двора в помещение проникает солнечный свет, который при попадании на мурманское стекло создает причудливые карамельно-золотые блики на полу и стенах.

















