Архитекторы Сергей Махно и Илья Товстоног (Sergey Makhno Architects) спроектировали интерьер самого большого японского ресторана на Украине — заведение шеф-повара Фудзивара Йошихиро площадью 800 кв. метров.
«Этот проект стал для меня особенным. Япония — мое место силы. Я был счастлив перенести частичку своей любви в сердце Украины. Нашей главной задачей было качественно донести японскую философию, а не прокричать ее шаблонными приемами. Дизайн-концепция ресторана — это уют, продиктованный Японией, но прочитанный украинской душой», — рассказывает Сергей Махно.
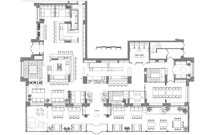
«Большинство японских ресторанов — камерные и, безусловно, уютные. Мы уделили значительное внимание планированию: по желанию заказчика необходимо было вместить до 250 посетителей одновременно», — отмечает Илья Товстоног, главный архитектор Sergey Makhno Architects.
Авторы проекта сохранили в заведении Fujiwara Yoshi атмосферу уюта и умиротворения благодаря внутреннему лабиринту помещений, в котором функциональные зоны разворачиваются одна за другой.
При входе посетителей встречает терраса-сад. Панорамные окна обеспечивают большое количество естественного света. Выкрашенный в черный цвет деревянный потолок дополнен объемными светильниками в форме часенов — венчиков для взбивания чая матча — с мягким рассеянным освещением.
Аллея бонсаев, привезенных из маленького городка под Токио, ведет к аквариумам с морской и пресной водой, за которыми расположен массивный стол для обработки тунца.
Если после бонсаев повернуть направо, то посетитель окажется в суши-баре под крупными светильниками «Фудзияма», вдохновленных японской горной вершиной. В этой же части заведения находится главный банкетный зал, две татами-комнаты и помещение для бизнес-переговоров.
Если вернуться к бонсаям и повернуть налево, то гость окажется в зоне темпуры, робата-гриля. Здесь же расположены многочисленные места посадки и еще одна комната-татами. Кульминационной зоной ресторана стал травертиновый бар, расположенный под легкой серой тканью.
В пространстве присутствуют традиционные японские икебаны, керамические бочки с саке, стены украшены каменными плитами с поэмами. Стоит отметить, что все предметы освещения в ресторане созданы по дизайну Сергея Махно, а кремовые стулья и столы были разработаны специально для заведения.








