Архитектор Инга Кордя спроектировала квартиру для путешественника-мотоциклиста. Наблюдать, что происходит в его доме, молодой человек может из любой точки земного шара.
Современные технологии украшают и упрощают жизнь, однако их применение должно быть оправданно — считает Инга Кордя. «Важно узнать потребности человека и ограничиться тем, что ему действительно необходимо. Например, есть смысл сделать шторы на электроприводе в гостиной с панорамными окнами, но вряд ли это разумно в маленькой спальне и тем более в детской. И уж точно не надо cтавить холодильник с выходом в Интернет, только потому, что это «круто» и «модно».
В данном случае заказчик четко сформулировал свои пожелания. Молодой человек, интеллектуал и книголюб, увлекается мотоциклами, объездил полмира, любит путешествовать по России — он хотел систему «умный дом», чтобы управлять своей квартирой и наблюдать, что в ней происходит, из любой точки мира. Кроме того, планировал ультрасовременный домашний кинотеатр, биокамин, встроенный шкаф для мотоциклетных шлемов и книг.
Недвижимость клиент выбирал вместе с архитектором. «Мы посмотрели немало новостроек, но когда я увидела эту квартиру в поселке «Парк Рублево» на первом этаже, сразу поняла: вот то, что нужно. Здесь ощущаешь полное слияние с природой — таких мест в Москве мало».
«Я придерживаюсь архитектурного подхода, — говорит Инга Кордя, — сначала создаю объемно-пространственную композицию, разрабатываю функционально-планировочное решение. Главное — правильный эргономичный каркас. Дизайн второстепенен.
Когда начинаю работать с заказчиками, спрашиваю, какие книги они читают, какие фильмы смотрят, о чем мечтают, выясняю их ритм жизни. Моя задача понять человека и уже его глазами смотреть на проект. Часто он не может сформулировать, что ему нужно, и уж тем более не понимает, как воплотить это в жизнь. Через свои фильтры я пропускаю все его пожелания и выдаю конечный грамотный продукт».
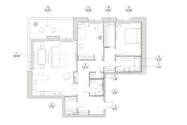
На площади 130 кв. метров спланировано 12 помещений. Больше всего места, 43 кв. метра отведено объединенному пространству гостиной-кухни-столовой. Есть также спальня, гостевая комната, которая впоследствии может стать детской, ванная и мужской санузел, две гардеробные, постирочная, прихожая, два холла, превращенный в веранду балкон. Помещения логично перетекают одно в другое, нет ни одной случайной, «цепляющей» глаз детали. Почему тот или иной предмет стоит именно на этом месте — таких вопросов здесь не возникает.
Ландшафт за окном задал тон: в интерьер перетекли цвета, фактуры и формы. Стена отделана серым сланцем, который переливается серебром, над столом из массива горного карагача радует глаз люстра в виде веток с листочками.
«Серый сланец мы привезли под заказ из Испании — слэб размером 2,5 х 1 м. Полотно выносили на улицу, компоновали рисунок и потом уже монтировали на поверхности стены. Освещение продумано так, чтобы луч света, дневного или искусственного, попадал на стену и она играла переливами оттенков».
Открытый балкон площадью 12 кв. метров посчитали непрактичной роскошью и превратили в закрытую веранду, где можно проводить время круглый год. Для чего установили инфракрасные потолочные обогреватели, а управление вывели на стену. Уютно и в гостиной: встроенный модуль Bluetooth позволяет управлять биокамином со смартфона. Высокие технологии и близость к природе — редкое, но чрезвычайно востребованное сочетание в интерьере XXI века.


















