Складной домик, который можно распаковать и установить за 3 часа - Архитектура и интерьер » Дизайна и строительство.
  • Контакты Аnio
«Дизайна и строительство» - проект видео новостей собранных на одном портале .. » Услуги » Другие услуги » Складной домик, который можно распаковать и установить за 3 часа - Архитектура и интерьер

Складной домик, который можно распаковать и установить за 3 часа - Архитектура и интерьер

10-01-2021, 00:00   Johnson   Нашли ошибку?    Мы в Яндекс.Дзен




Складной домик, который можно распаковать и установить за 3 часа - Архитектура и интерьер



Строительство дома требует затраты определенных средств и времени. Однако благодаря современным технологиям люди могут получить комфортную жилую зону настолько быстро, что даже не верится в такие чудеса. Один из таких проектов - латвийский стартап Brette Haus, позволяющий заселиться в собственный дом в течение трех часов после прибытия модуля на нужное место. Складывающаяся конструкция настолько продумана, что ее можно доставить в любую точку на обычном грузовике.


Теперь свой дом можно распаковать всего за 3 часа в любой точке мира (Brette Haus).

Представьте себе дом, который можно легко упаковать и взять с собой, когда захочется отправиться в длительное путешествие или переехать на новое место. Казалось бы, фантастика, но нет, именно это предлагают разработчики из Brette Haus (компания организована в Латвии), спроектировавшие уникальные модели небольших домиков на шарнирах, схожие по технике (раскладывания/складывания) на создание фигурок оригами.

Благодаря шарнирной системе развертывания специалисты фирмы смогли создать компактный дом, который можно брать с собой в поездки (Brette Haus).

На данный момент компания предлагает линейку жилых модулей в различных размерах и конфигурациях, которые можно складывать в течении всего пары-тройки часов, превращая в полностью готовые для комфортного проживания площади. Благодаря разработанной и запатентованной шарнирной системе развертывания жилые секции и крыша складываются в небольшую квадратную форму для удобства транспортировки.


Дом-трансформер можно доставить как обычный грузовой контейнер и распаковать (Brette Haus).

А работает эта система так: шарнир, установленный на полу, позволяет одной стороне дома складываться в другую, в то время как другой шарнир, в районе потолка, трансформирует крышу, образовывая куб. Такая форма и габариты удобны для автомобильного транспорта. Единственное, когда домик прибудет на место дислокации, то понадобится манипулятор, который снимет конструкцию с транспортного средства и установит на заранее подготовленную бетонную платформу или сваи.

Трансформирующийся домик можно устанавливать в любом месте, главное, чтобы туда доехал грузовик с манипулятором (Brette Haus).

Для того чтобы разложить дом, будет достаточно нескольких движений, и он примет более привычные формы, превратившись в комфортабельное жилое помещение. Останется лишь подключить коммуникации к централизованным инженерным сетям или обзавестись автономными системами жизнеобеспечения. Беспокоиться о том, что жилой модуль может также легко сложиться от сильных порывов ветра, не стоит, ведь предусмотрена система фиксации и самоподдержки всех его конструктивных элементов, созданных из многослойных клееных деревянных панелей (более известных как CLT). Чтобы владельцы не боялись лишний раз передвигать свой дом, на шарнирные комплектующие и петли компания дает гарантию на 50 полных циклов развертывания, так что можно менять место жительства хоть по нескольку раз в год.


Складывающийся дом создан из экологически чистых натуральных материалов и готов к немедленному заселению (Brette Haus).


Трансформирующиеся домики могут поставляться как с обстановкой, так и без нее (Brette Haus).

Интересный факт от Novate.ru: Самое приятное для владельцев складывающегося жилья - то, что оно полностью готово для проживания, ведь его как фасадные, так и внутренние стены сделаны из экологически чистой древесины, не нуждающейся в дополнительной отделке. Также установлено необходимое сантехническое оборудование (унитаз, рукомойник, мойка, душевая кабина), проведена электропроводка и закреплены розетки с выключателями, встроены скрытые системы хранения. Все вышеперечисленное входит в базовый комплект стоимостью от 23 тыс. дол., а дополнительные элементы в виде трансформирующейся мебели от Ikea, оборудования для использования возобновляемой энергии, канализационные и очистные мини-станции или изменения отделочных материалов будут оплачиваться дополнительно.


Схема-чертеж фантастической трансформации эко-домика (проект Brette Haus).

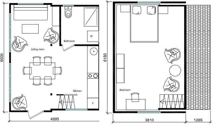
План-чертеж первого и второго уровней домика-трансформера, созданного компанией Brette Haus.

Казалось бы, как все необходимые бытовые принадлежности и оборудование можно вместить в небольшой куб, не превышающий размеров обычного грузового контейнера? Однако в возможностях инновационного эко-дома кроется еще один секрет.

Модели, предназначенные для размещения в городской среде (Brette Haus).

Как утверждает владелец компании и ее идейный вдохновитель – инженер-изобретатель Геннадий Бакунин: «В конструкции дома-трансформера имеется еще одна запатентованная вещь – функция удваивания пространства (если быть точным, мы смогли увеличить полезную площадь на 149 %!). Кроме того, некоторые уникальные изобретения все еще на стадии внедрения и испытаний. Надеемся, что они в скором времени помогут сделать крошечную жизнь с огромными возможностями».


Гостиная эко-домика от Brette Haus укомплектованная предметами мебели от Ikea.

В базовой комплектации распаковывающийся домик имеет все необходимое сантехническое оборудование и электроразводку (Brette Haus).

На данный момент специалисты Brette Haus разработали и выпустили три модели эко-дома, имеющие площадь 21, 33 и 48 кв. м в жилом состоянии (развернутом виде), предназначенные для городского и загородного размещения. Для оптимизации пространства все модули имеют два уровня: на первом расположены гостиная, кухня и ванная комната, а на втором – спальня.

Очаровательные эко-домики можно использовать и в качестве отельных номеров, и для ярмарочной торговли. © Brette Haus.

Приоритетным направлением компании является загородный туризм, хотя компактные и простые при транспортировке, сборке/разборке домики с охотой используют киностудии для натурных съемок на природе, организаторы музыкальных фестивалей, перемещаемых выставок, в качестве торговых «пряничных домиков» на уличных ярмарках и т. д.

Трансформирующийся домик одинаково хорошо выглядит и на лоне дикой природы, и в саду. © Brette Haus.

Такие дома прекрасно подойдут в качестве садовых или гостевых домиков, мастерских и станут настоящим спасением во время чрезвычайных ситуаций для оказания помощи пострадавшим. Приобрести домик-трансформер уже сейчас может любой желающий, но следует рассчитывать на то, что от момента заказа до прибытия в нужное место пройдет не менее 8 недель.
Трансформирующиеся дома не являются новинкой, но каждый автор привносит в конструкции особенные элементы, которые и делают их уникальными. Так, например, физик Каспар Шолс создал динамичный садовый павильон, который можно подстраивать под свое настроение и погодные условия.

Строительство дома требует затраты определенных средств и времени. Однако благодаря современным технологиям люди могут получить комфортную жилую зону настолько быстро, что даже не верится в такие чудеса. Один из таких проектов - латвийский стартап Brette Haus, позволяющий заселиться в собственный дом в течение трех часов после прибытия модуля на нужное место. Складывающаяся конструкция настолько продумана, что ее можно доставить в любую точку на обычном грузовике. Теперь свой дом можно распаковать всего за 3 часа в любой точке мира (Brette Haus). Представьте себе дом, который можно легко упаковать и взять с собой, когда захочется отправиться в длительное путешествие или переехать на новое место. Казалось бы, фантастика, но нет, именно это предлагают разработчики из Brette Haus (компания организована в Латвии), спроектировавшие уникальные модели небольших домиков на шарнирах, схожие по технике (раскладывания/складывания) на создание фигурок оригами. Благодаря шарнирной системе развертывания специалисты фирмы смогли создать компактный дом, который можно брать с собой в поездки (Brette Haus). На данный момент компания предлагает линейку жилых модулей в различных размерах и конфигурациях, которые можно складывать в течении всего пары-тройки часов, превращая в полностью готовые для комфортного проживания площади. Благодаря разработанной и запатентованной шарнирной системе развертывания жилые секции и крыша складываются в небольшую квадратную форму для удобства транспортировки. Дом-трансформер можно доставить как обычный грузовой контейнер и распаковать (Brette Haus). А работает эта система так: шарнир, установленный на полу, позволяет одной стороне дома складываться в другую, в то время как другой шарнир, в районе потолка, трансформирует крышу, образовывая куб. Такая форма и габариты удобны для автомобильного транспорта. Единственное, когда домик прибудет на место дислокации, то понадобится манипулятор, который снимет конструкцию с транспортного средства и установит на заранее подготовленную бетонную платформу или сваи. Трансформирующийся домик можно устанавливать в любом месте, главное, чтобы туда доехал грузовик с манипулятором (Brette Haus). Для того чтобы разложить дом, будет достаточно нескольких движений, и он примет более привычные формы, превратившись в комфортабельное жилое помещение. Останется лишь подключить коммуникации к централизованным инженерным сетям или обзавестись автономными системами жизнеобеспечения. Беспокоиться о том, что жилой модуль может также легко сложиться от сильных порывов ветра, не стоит, ведь предусмотрена система фиксации и самоподдержки всех его конструктивных элементов, созданных из многослойных клееных деревянных панелей (более известных как CLT). Чтобы владельцы не боялись лишний раз передвигать свой дом, на шарнирные комплектующие и петли компания дает гарантию на 50 полных циклов развертывания, так что можно менять место жительства хоть по нескольку раз в год. Складывающийся дом создан из экологически чистых натуральных материалов и готов к немедленному заселению (Brette Haus). Трансформирующиеся домики могут поставляться как с обстановкой, так и без нее (Brette Haus). Интересный факт от Novate.ru: Самое приятное для владельцев складывающегося жилья - то, что оно полностью готово для проживания, ведь его как фасадные, так и внутренние стены сделаны из экологически чистой древесины, не нуждающейся в дополнительной отделке. Также установлено необходимое сантехническое оборудование (унитаз, рукомойник, мойка, душевая кабина), проведена электропроводка и закреплены розетки с выключателями, встроены скрытые системы хранения. Все вышеперечисленное входит в базовый комплект стоимостью от 23 тыс. дол., а дополнительные элементы в виде трансформирующейся мебели от Ikea, оборудования для использования возобновляемой энергии, канализационные и очистные мини-станции или изменения отделочных материалов будут оплачиваться дополнительно. Схема-чертеж фантастической трансформации эко-домика (проект Brette Haus). План-чертеж первого и второго уровней домика-трансформера, созданного компанией Brette Haus. Казалось бы, как все необходимые бытовые принадлежности и оборудование можно вместить в небольшой куб, не превышающий размеров обычного грузового контейнера? Однако в возможностях инновационного эко-дома кроется еще один секрет. Модели, предназначенные для размещения в городской среде (Brette Haus). Как утверждает владелец компании и ее идейный вдохновитель – инженер-изобретатель Геннадий Бакунин: «В конструкции дома-трансформера имеется еще одна запатентованная вещь – функция удваивания пространства (если быть точным, мы смогли увеличить полезную площадь на 149 %!). Кроме того, некоторые уникальные изобретения все еще на стадии внедрения и испытаний. Надеемся, что они в скором времени помогут сделать крошечную жизнь с огромными возможностями». Гостиная эко-домика от Brette Haus укомплектованная предметами мебели от Ikea. В базовой комплектации распаковывающийся домик имеет все необходимое сантехническое оборудование и электроразводку (Brette Haus). На данный момент специалисты Brette Haus разработали и выпустили три модели эко-дома, имеющие площадь 21, 33 и 48 кв. м в жилом состоянии (развернутом виде), предназначенные для городского и загородного размещения. Для оптимизации пространства все модули имеют два уровня: на первом расположены гостиная, кухня и ванная комната, а на втором – спальня. Очаровательные эко-домики можно использовать и в качестве отельных номеров, и для ярмарочной торговли. © Brette Haus. Приоритетным направлением компании является загородный туризм, хотя компактные и простые при транспортировке, сборке/разборке домики с охотой используют киностудии для натурных съемок на природе, организаторы музыкальных фестивалей, перемещаемых выставок, в качестве торговых «пряничных домиков» на уличных ярмарках и т. д. Трансформирующийся домик одинаково хорошо выглядит и на лоне дикой природы, и в саду. © Brette Haus. Такие дома прекрасно подойдут в качестве садовых или гостевых домиков, мастерских и станут настоящим спасением во время чрезвычайных ситуаций для оказания помощи пострадавшим. Приобрести домик-трансформер уже сейчас может любой желающий, но следует рассчитывать на то, что от момента заказа до прибытия в нужное место пройдет не менее 8 недель. Трансформирующиеся дома не являются новинкой, но каждый автор привносит в конструкции особенные элементы, которые и делают их уникальными. Так, например, физик Каспар Шолс создал динамичный садовый павильон, который можно подстраивать под свое настроение и погодные условия.

Цитирование статьи, картинки - фото скриншот - Rambler News Service.
Иллюстрация к статье - Яндекс. Картинки.
Есть вопросы. Напишите нам.
Общие правила  поведения на сайте.


«anio.su»