Современный домик в лесу, привлекающий А-образной крышей - Архитектура и интерьер » Дизайна и строительство.
  • Контакты Аnio
«Дизайна и строительство» - проект видео новостей собранных на одном портале .. » Услуги » Другие услуги » Современный домик в лесу, привлекающий А-образной крышей - Архитектура и интерьер

Современный домик в лесу, привлекающий А-образной крышей - Архитектура и интерьер

10-03-2025, 00:00   Ада   Нашли ошибку?    Мы в Яндекс.Дзен




Современный домик в лесу, привлекающий А-образной крышей - Архитектура и интерьер



Многие современные дома отличаются нестандартными формами, особенно если речь заходит о строительстве загородных убежищ, спрятанных в лесной глуши. Не стал исключением и удивительный коттедж, появившейся в лесах Квебека, спроектированный для молодой семьи, мечтающей иметь место, где можно насладиться тишиной, одурманивающими запахами листвы и цветов без посторонних глаз и шума соседей. При этом они пожелали, чтобы их дом не был похож на традиционные лесные хижины, что и стало причиной экспериментального строительства.

Современный домик в лесу, привлекающий черным цветом и сложной геометрией (Fahouse, Квебек). | Фото: yatzer.com.

Ну, кто не хотел бы иметь уютное загородное убежище, да еще, чтобы оно стильно выглядело и было комфортным? Не стало исключением и семейство из Квебека, которое смогло себе позволить не самостоятельно разрабатывать проект, а пригласить профессионала. Вот он и сделал все, чтобы заказчики остались довольны, а соседи обзавидовались.

Fahouse – эффектный дом с А-образной крышей (Квебек, Канада). | Фото: hypeandhyper.com.


Структура загородного дома Fahouse, спроектированного архитектором Жаном Вервилем.

Проектом загородного дома, который назвали Fahouse, занимался местный архитектор Жан Вервиль. Изобретательному дизайнеру предстояло разработать эффектное убежище на довольно непростом участке земли. Мало того, что он находится в лесу, где строительство вести само по себе очень сложно из-за обилия растительности, которую требовалось сохранить в максимальном объеме, так еще приходилось учитывать все нормы и правила. А если к этому прибавить неровности рельефа, то Вервилю нужно было несколько раз выезжать на место, чтобы учесть массу нюансов и пожеланий клиентов, которые активно участвовали в проектировании. К счастью, его старания не прошли даром, в итоге семья получила довольно интересный и заметный дом, идеально вписавшийся в живописное окружение.

Необычная геометрия лесного убежища (Fahouse, Канада). | Фото: elcomercio.pe.


Издалека кажется, что часть дома «парит» над лесной поляной (Fahouse, Квебек). | Фото: hypeandhyper.com.

Конструкционные особенности Fahouse: Из-за наличия наклона участка, дом расположен на двух уровнях, при этом состоит из двух объемов А-образной формы. Но и это еще не все особенности стильного коттеджа. Если смотреть издалека под определенным ракурсом, то кажется, будто вторая А-образная структура «парит» над землей, но это зрительная иллюзия. А все потому, что первый этаж намного меньше по размеру и его две стороны остеклены, оставшаяся же площадь крыши образует консольный навес, что является приятным бонусом для отдыхающих на лоне природы. Плюс ко всему крыша и глухие стены загородного дома покрыты одинаковым материалом глубокого черного цвета, что делает его весьма заметной композицией среди вечнозеленых деревьев.

Глухой фасад Fahouse позволяет спрятаться от любопытных глаз. | Фото: bausource.com.


Ступени приведут на террасу Fahouse. | Фото: arkitera.com.

Учитывая, что строительство велось в лесной зоне, неподалеку очень популярной туристической тропы, просматриваемая часть дома имеет глухой фасад, что обеспечивает полную конфиденциальность частной жизни владельцев и их гостей. Вход и открытые зоны находятся с другой стороны. Наружная лестница приведет на нижнюю площадку, где расположены основные пространства для отдыха на свежем воздухе. Здесь же предусмотрен вход и имеется тропинка, ведущая к озеру, которое видно из щедро остекленной части дома. Стеклянные раздвижные двери всегда востребованы, когда семья прибывает на отдых, ведь ведут они на крытую террасу, где можно устроить пикник или просто с комфортом расслабиться в шезлонгах, причем в любую погоду.


Границы между внешним и внутренним пространством мастерски размыты (Fahouse, Канада).


Лаконичное оформление интерьера общего жилого пространства Fahouse. | Фото: hypeandhyper.com.


Эклектичный интерьер зоны кухни-столовой в загородном доме (Fahouse, Квебек). | Фото: bausource.com.

Поскольку консольная часть крыши подбита таким же материалом, что и в жилой зоне, а также предусмотрено масштабное остекление, то переход между внутренним и внешним пространством практически незаметен. Преступив порог эффектного дома, владельцы попадают в необычное жилое пространство. Наряду с отделкой из натуральных материалов (мебельная фанера, дерево, гипсокартон) можно увидеть эклектичную мебель от современных встроенных тумб и шкафов без изысков, до грубо сколоченного стола и скамейки, потрепанных временем и пользователями. Хотя не обошлось и без ярких акцентов, которые ярко выделяются на фоне натуральной неокрашенной древесины.


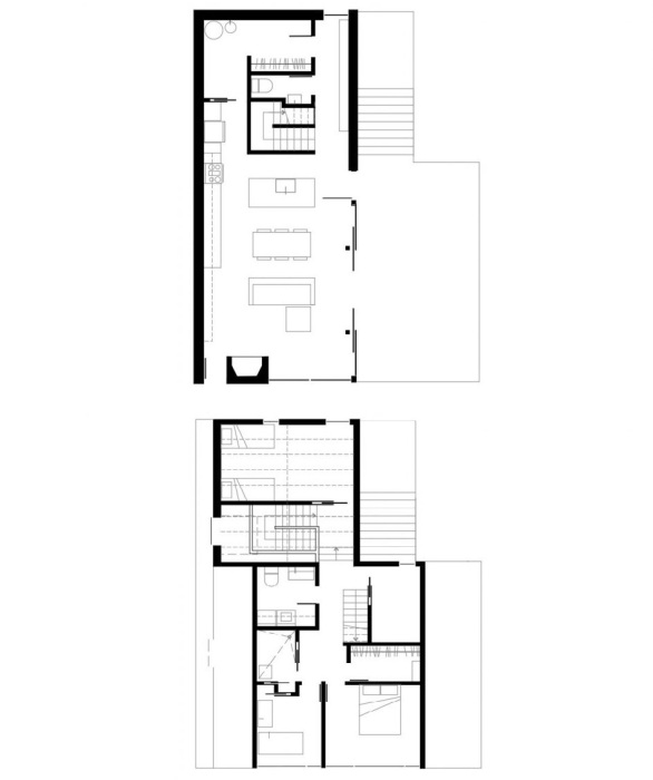
Планировка загородного дома Fahouse площадью 170 квадратных метров.


Коридор является единственной яркой зоной в лесном коттедже (Fahouse).


Многоуровневое пространство образует лабиринты (Fahouse, Канада). | Фото: indiaartndesign.com.

Авторы Novate.ru хотели бы отметить, что загородное убежище, площадь которого довольно впечатляет (170 кв. м), хотя и предусматривает наличие вполне традиционных жилых зон, но его планировка остается очень необычной. Даже узкий длинный коридор, стены и потолки которого окрашены в приглушенный красный цвет находится не у входа, а за общей жилой зоной. Его стены являются местом хранения для верхней одежды и уличной обуви. Основное же жилое пространство, окруженное стеклянными стенами, выступает в роли объединенной гостиной, столовой и кухни. Ну а дальше начинаются лабиринты из переходов, лестниц, спальных и игровых антресолей, скрытых уголков, где находятся одна из ванных комнат и гардеробная. Все эти пространства занимают насколько уровней и полууровней.

Интерьер детской комнаты (Fahouse).


Белоснежную плитку в душевой оттенили черными швами (Fahouse, Канада) .

Бонусом стало задействование чердачного пространства, которое пусть и идет на сужение из-за А-образной структуры крыши, но все же сохраняет объем и простор за счет белого цвета и высоты до самого ее конька. В первом объеме (если смотреть со стороны тропинки) обустроили детскую комнату. Чтобы дети имели свое личное пространство, ее разделили на два яруса, а свободное место выполняет роль игровой зоны. Попасть на кровать, подвешенную к скошенной стене, можно по этажерке, в глубине которой хранятся книги и игрушки.


Главным украшением спальни стали виды за окном (Fahouse, Квебек). | Фото: indiaartndesign.com.


Ванная комната возле родительской спальни (Fahouse).

В переходе между двумя жилыми структурами, у застекленной стороны с видом на озеро, обустроена ванная комната, где помимо душевой имеется еще отдельно стоящая ванная, обеспечивающая полное расслабление. Рядом с ней находится родительская спальня, которая может похвастаться такими же прекрасными видами за окном и большим пространством, не загроможденным лишней мебелью и всякими помпезными мелочами, ведь они всегда будут лишними на отдыхе в лесной глуши.


Лестница приведет на жилой чердак (Fahouse, Канада). | Фото: elcomercio.pe.


Пространство лофта можно задействовать в зависимости от обстоятельств (Fahouse). | Фото: yatzer.com.

А вот чердачный уровень является полностью свободным. Его можно использовать в качестве уединенной лаунж-зоны, кабинета, где никто не побеспокоит, места для занятий йогой и т. д. Если же планируется приезд гостей, ее легко превратить в изолированную спальню, положив на пол надувной матрас и постельное белье.
В продолжение темы необычных загородных убежищ, гарантирующих незабываемый отдых, предлагаем заглянуть в очаровательный гостевой домик, напоминающий не то гриб, не то нору хоббита.

А вот познавательное видео нашего канала:

Многие современные дома отличаются нестандартными формами, особенно если речь заходит о строительстве загородных убежищ, спрятанных в лесной глуши. Не стал исключением и удивительный коттедж, появившейся в лесах Квебека, спроектированный для молодой семьи, мечтающей иметь место, где можно насладиться тишиной, одурманивающими запахами листвы и цветов без посторонних глаз и шума соседей. При этом они пожелали, чтобы их дом не был похож на традиционные лесные хижины, что и стало причиной экспериментального строительства. Современный домик в лесу, привлекающий черным цветом и сложной геометрией (Fahouse, Квебек). | Фото: yatzer.com. Ну, кто не хотел бы иметь уютное загородное убежище, да еще, чтобы оно стильно выглядело и было комфортным? Не стало исключением и семейство из Квебека, которое смогло себе позволить не самостоятельно разрабатывать проект, а пригласить профессионала. Вот он и сделал все, чтобы заказчики остались довольны, а соседи обзавидовались. Fahouse – эффектный дом с А-образной крышей (Квебек, Канада). | Фото: hypeandhyper.com. Структура загородного дома Fahouse, спроектированного архитектором Жаном Вервилем. Проектом загородного дома, который назвали Fahouse, занимался местный архитектор Жан Вервиль. Изобретательному дизайнеру предстояло разработать эффектное убежище на довольно непростом участке земли. Мало того, что он находится в лесу, где строительство вести само по себе очень сложно из-за обилия растительности, которую требовалось сохранить в максимальном объеме, так еще приходилось учитывать все нормы и правила. А если к этому прибавить неровности рельефа, то Вервилю нужно было несколько раз выезжать на место, чтобы учесть массу нюансов и пожеланий клиентов, которые активно участвовали в проектировании. К счастью, его старания не прошли даром, в итоге семья получила довольно интересный и заметный дом, идеально вписавшийся в живописное окружение. Необычная геометрия лесного убежища (Fahouse, Канада). | Фото: elcomercio.pe. Издалека кажется, что часть дома «парит» над лесной поляной (Fahouse, Квебек). | Фото: hypeandhyper.com. Конструкционные особенности Fahouse: Из-за наличия наклона участка, дом расположен на двух уровнях, при этом состоит из двух объемов А-образной формы. Но и это еще не все особенности стильного коттеджа. Если смотреть издалека под определенным ракурсом, то кажется, будто вторая А-образная структура «парит» над землей, но это зрительная иллюзия. А все потому, что первый этаж намного меньше по размеру и его две стороны остеклены, оставшаяся же площадь крыши образует консольный навес, что является приятным бонусом для отдыхающих на лоне природы. Плюс ко всему крыша и глухие стены загородного дома покрыты одинаковым материалом глубокого черного цвета, что делает его весьма заметной композицией среди вечнозеленых деревьев. Глухой фасад Fahouse позволяет спрятаться от любопытных глаз. | Фото: bausource.com. Ступени приведут на террасу Fahouse. | Фото: arkitera.com. Учитывая, что строительство велось в лесной зоне, неподалеку очень популярной туристической тропы, просматриваемая часть дома имеет глухой фасад, что обеспечивает полную конфиденциальность частной жизни владельцев и их гостей. Вход и открытые зоны находятся с другой стороны. Наружная лестница приведет на нижнюю площадку, где расположены основные пространства для отдыха на свежем воздухе. Здесь же предусмотрен вход и имеется тропинка, ведущая к озеру, которое видно из щедро остекленной части дома. Стеклянные раздвижные двери всегда востребованы, когда семья прибывает на отдых, ведь ведут они на крытую террасу, где можно устроить пикник или просто с комфортом расслабиться в шезлонгах, причем в любую погоду. Границы между внешним и внутренним пространством мастерски размыты (Fahouse, Канада). Лаконичное оформление интерьера общего жилого пространства Fahouse. | Фото: hypeandhyper.com. Эклектичный интерьер зоны кухни-столовой в загородном доме (Fahouse, Квебек). | Фото: bausource.com. Поскольку консольная часть крыши подбита таким же материалом, что и в жилой зоне, а также предусмотрено масштабное остекление, то переход между внутренним и внешним пространством практически незаметен. Преступив порог эффектного дома, владельцы попадают в необычное жилое пространство. Наряду с отделкой из натуральных материалов (мебельная фанера, дерево, гипсокартон) можно увидеть эклектичную мебель от современных встроенных тумб и шкафов без изысков, до грубо сколоченного стола и скамейки, потрепанных временем и пользователями. Хотя не обошлось и без ярких акцентов, которые ярко выделяются на фоне натуральной неокрашенной древесины. Планировка загородного дома Fahouse площадью 170 квадратных метров. Коридор является единственной яркой зоной в лесном коттедже (Fahouse). Многоуровневое пространство образует лабиринты (Fahouse, Канада). | Фото: indiaartndesign.com. Авторы Novate.ru хотели бы отметить, что загородное убежище, площадь которого довольно впечатляет (170 кв. м), хотя и предусматривает наличие вполне традиционных жилых зон, но его планировка остается очень необычной. Даже узкий длинный коридор, стены и потолки которого окрашены в приглушенный красный цвет находится не у входа, а за общей жилой зоной. Его стены являются местом хранения для верхней одежды и уличной обуви. Основное же жилое пространство, окруженное стеклянными стенами, выступает в роли объединенной гостиной, столовой и кухни. Ну а дальше начинаются лабиринты из переходов, лестниц, спальных и игровых антресолей, скрытых уголков, где находятся одна из ванных комнат и гардеробная. Все эти пространства занимают насколько уровней и полууровней. Интерьер детской комнаты (Fahouse). Белоснежную плитку в душевой оттенили черными швами (Fahouse, Канада) . Бонусом стало задействование чердачного пространства, которое пусть и идет на сужение из-за А-образной структуры крыши, но все же сохраняет объем и простор за счет белого цвета и высоты до самого ее конька. В первом объеме (если смотреть со стороны тропинки) обустроили детскую комнату. Чтобы дети имели свое личное пространство, ее разделили на два яруса, а свободное место выполняет роль игровой зоны. Попасть на кровать, подвешенную к скошенной стене, можно по этажерке, в глубине которой хранятся книги и игрушки. Главным украшением спальни стали виды за окном (Fahouse, Квебек). | Фото: indiaartndesign.com. Ванная комната возле родительской спальни (Fahouse). В переходе между двумя жилыми структурами, у застекленной стороны с видом на озеро, обустроена ванная комната, где помимо душевой имеется еще отдельно стоящая ванная, обеспечивающая полное расслабление. Рядом с ней находится родительская спальня, которая может похвастаться такими же прекрасными видами за окном и большим пространством, не загроможденным лишней мебелью и всякими помпезными мелочами, ведь они всегда будут лишними на отдыхе в лесной глуши. Лестница приведет на жилой чердак (Fahouse, Канада). | Фото: elcomercio.pe. Пространство лофта можно задействовать в зависимости от обстоятельств (Fahouse). | Фото: yatzer.com. А вот чердачный уровень является полностью свободным. Его можно использовать в качестве уединенной лаунж-зоны, кабинета, где никто не побеспокоит, места для занятий йогой и т. д. Если же планируется приезд гостей, ее легко превратить в изолированную спальню, положив на пол надувной матрас и постельное белье. В продолжение темы необычных загородных убежищ, гарантирующих незабываемый отдых, предлагаем заглянуть в очаровательный гостевой домик, напоминающий не то гриб, не то нору хоббита. А вот познавательное видео нашего канала:

Цитирование статьи, картинки - фото скриншот - Rambler News Service.
Иллюстрация к статье - Яндекс. Картинки.
Есть вопросы. Напишите нам.
Общие правила  поведения на сайте.


«anio.su»