Санузел – одна из сложных зон в квартире или доме. Тут проходит большое количество коммуникаций, усложняющих ремонт. Их не всегда можно спрятать, оставив доступ для возможного ремонта. Поэтому многие в качестве альтернативы размещают шкаф в туалете за унитазом. Можно приобрести готовую конструкцию или сделать ее самостоятельно. Материал, форма, размеры могут отличаться, должны подбираться в зависимости от особенностей помещения, типа отделки стен. Это может быть навесное декоративное изделие или по-настоящему функциональный шкаф для хранения бытовой химии, запасов бумаги и прочих санитарных составов.
Содержание
Ошибки при обустройстве туалета могут сказаться на комфорте, качестве использования небольшого помещения. Для повышения эргономических характеристик пространства необходимо выбирать внешне привлекательные, долговечные, функциональные конструкции. Встраивают шкафчики в сантехническом помещении для решения следующих проблем:
Оптимизируя пространство, особенно в малогабаритных помещениях, внимание следует уделить неиспользуемым, труднодоступным областям. Одна из таких – задняя стенка за унитазом. Она обычно пустует, если только не удерживает бойлер. Закрыть трубы можно навесным, отдельностоящим или встроенным шкафом. В «мертвой зоне», образовавшейся за счет бачка, можно расположить подвесные полки, глубиной до 40 см.
Навесной шкаф – универсальный вариант. Можно самостоятельно выбрать размеры модуля и высоту. Для создания иллюзии продолжения комнаты наружную сторону дверец декорируют зеркалами. Если площадь сильно ограничена, с пользой занять можно свободные углы.
Отдельностоящие конструкции имеют П-образную форму. Полки могут быть закрытыми или открытыми, если есть препятствие для свободного движения дверец. Шкаф на ножках имеет специальный проем для бочка, за счет чего может разместиться в любом санузле. Процесс сборки, инсталляция не потребует много времени и сил, не нужно сверлить стены, подбирать дюбели.
Встраиваемые системы позволит устанавливать не каждая планировка туалета. Для их монтажа подходят туалеты с нишами. Потребуется изготовить только полки и дверцы. Роль задних, боковых стенок будет играть сам проем.
При выборе изделия необходимо учитывать его габариты. Шкафчики не должны занимать много места. Для небольших помещений подойдут узкие полки за унитазом или на боковой стене. Если позволяет пространство, разместить можно тумбу на ножках, пенал под потолок. Конструкция обеспечит максимальный доступ к коммуникациям. Маленький люк располагают снизу, он скроет водомеры и нижнюю разводку.
Определившись с типом и размером конструкции, можно переходить к выбору дизайна. Популярностью пользуются следующие модели:
Шкафчик смотрится гармонично в любом помещении, если его полки не будут шире 20 см.
Обдумывая варианты шкафа для туалета, выбор следует остановить на наиболее функциональной модели. Изделие не должно выделяться из общей цветовой гаммы, соответствовать интерьеру. Важно правильно определить форму будущего шкафа. Конструкция может быть прямоугольной, треугольной, радиусной, трапециевидной, угловой. Каждая модель обеспечивает рациональную планировку в отдельном помещении.
В небольшом доме, а особенно в квартире, каждый сантиметр на счету. Огромное количество различных аксессуаров необходимо где-то хранить. Для этих целей можно использовать навесной шкафчик, расположенный в туалете над унитазом. Для любого помещения найдется подходящий вариант, соответствующий параметрам комнаты. Шкаф можно подыскать среди старого кухонного гарнитура, мебели, установленной в гостиной, приобрести в специализированном магазине, заказать по размерам санузла.
В некоторых случаях для установки предмета приходится выпиливать определенные части, для прохода стояка и других труб. Полученный срез желательно обработать водоотталкивающим средством и покрасить. При выборе размера шкафчика следует обратить внимание на следующие моменты:
Для расположения тяжелой конструкции потребуется наличие прочных стен. Если таковых нет, стоит рассмотреть вариант с использованием подвесных полочек, которые под силу сделать многим своими руками. Благодаря отсутствию фасада, задней перегородки, боковых стен они имеют небольшой вес. На них можно разместить туалетные принадлежности, предметы декора. Но не стоит забывать, что все элементы будут находиться на виду.
В частном доме, где предусмотрен большой по площади туалет, можно расположить рядом с унитазом полноценный шкаф. Такая конструкция, как правило, занимает достаточно много места, имеет массивный вид. Преимущество этого выбора заключается в том, что все предметы, расположенные на внутренних полках, не находятся на виду. Закрытые модели не требуют постоянной уборки.
Для небольших уборных лучше рассмотреть вариант шкафчика на ножках. Они занимают пространство вдоль стены, возвышаясь над бочком, имеют открытые и закрытые полки. Можно заказать специальные конструкции, которые будут опираться на две тумбы, обрамляющие унитаз с обеих сторон. Сверху над ними расположены секции с полками и дверцами.
При выборе любого варианта следует учитывать совместимость стиля и оттенка мебели с общим оформлением комнаты. Также необходимо подобрать изделие, которое будет вмещать максимальное количество вещей, не нарушая комфортного существования людей. Поэтому при покупке или заказе шкафа следует четко вымерять все параметры помещения, учесть имеющиеся ограничения.
Обустройство открытой ниши позволит решить множество задач. Она поможет замаскировать стояк и прочие сантехнические коммуникации, в ее углублении можно разместить различные полезные предметы и элементы декора. Для ее изготовления используют разные материалы – дерево, металл, пластик. Наилучшим сырьем считается гипсокартон. Сначала возводится каркас из металлопрофиля, на который крепится обшивка.
Если туалет совмещен с ванной, в нем постоянно сыро, применяется керамическая плитка для отделки стен. В таком случае лучше для оборудования ниши использовать качественную кирпичную кладку. Углубления в возводимых перегородках будут играть роль полок. При этом необходимо побеспокоиться о безопасности, сделать все углы сглаженными. Для повышения комфорта внутри кармана надо установить декоративную светодиодную подсветку.
В некоторых случаях уместно использовать закрытый фасад. Оборудовав нишу дверцами, можно скрыть от посторонних взглядов содержимое, свести к минимуму количество уборок. Такое дополнение сделает конструкцию похожей на полноценный шкаф. Для этих целей хорошо подойдут деревянные или пластиковые двери, рольставни, раздвижные элементы, стеклянные поверхности.
Встроенные конструкции станут удобной альтернативой рассмотренным вариантам. В отличие от корпусных изделий, они имеют только двери и полки, функцию задней и боковых перегородок играют стены и потолок. Стоимость таких моделей намного дешевле, при этом они не уступают аналогам по вместительности, а в некоторых случаях даже превосходят их.
Узкий туалет полностью соответствует требованиям для расположения конструкции. Собрать ее под силу каждому, достаточно сделать замеры, выполнить разметку, подобрать полки и двери, прикрепить их к стенам. Такие изделия очень просто вписать в существующий интерьер. Для визуального увеличения пространства можно использовать зеркальные дверцы.
В качестве основных материалов для изготовления можно использовать ДСП, МДФ, натуральную древесину, зеркала, стекло. Украсив шкаф рисунком, 3D изображением, выполнив комбинированный фасад, можно оформить его в любом существующем стиле, будь то современное, классическое или этническое направление.
Начальный этап работы по сбору конструкции предполагает составление проекта. После модели и способа монтажа необходимо определиться с материалом элементов и способом их изготовления – самостоятельное изготовление или заказ в мастерской по необходимым размерам. Если помещение узкое, шкаф лучше делать на всю стену. В квадратных комнатах конструкцию можно дополнить боковыми ящиками.
Самостоятельное изготовление элементов для сборной конструкции потребует наличие специального инструмента для обработки, формирования, крепления деталей. Также следует заранее определиться с типом дверец, подобрать петли, ручки и прочую фурнитуру. Для работы потребуется:
Материал для шкафа в туалет должен быть влагостойким, выдерживать перепады температуры. Если он не соответствует требованиям, его следует обработать специальными составами или наложить защитное покрытие. Для изготовления стеллажей, закрытых конструкций в санузле чаще используют следующие варианты:
Некоторые типы фанеры, например, ФСФ содержат фенолформальдегидные смолы, которые выделяются при нагревании. Сильный канцероген провоцирует образование раковых опухолей, поэтому материал следует использовать на максимальном расстоянии от труб отопления, бойлера.
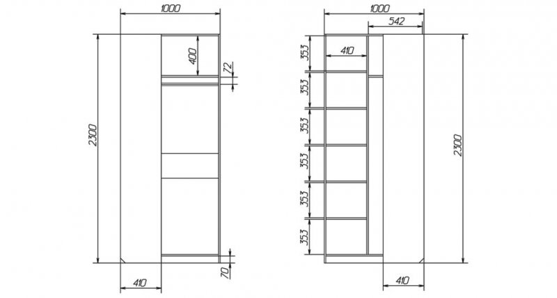
При самостоятельном составлении чертежа необходимо учесть несколько важных моментов. В первую очередь схематично отражают габариты помещения, отмечают расположение сантехнических узлов. Выделить следует участки, к которым будет оставлен доступ.
На основании начальной схемы будет создаваться проект с детализированной разметкой всех элементов. Простая конструкция включает боковые стены, полки, дверцы, заднюю стенку, при необходимости. Каркас может занимать всю высоту стены, от пола до потолка, или занимать пространство только над бочком.
Если проект составляется для туалета в многоквартирном доме, то делать шкаф лучше на всю ширину комнаты. Она составляет 80-85 см. Глубину полок определяют с учетом отступа бачка от стены. Дверки выбирают исходя из типа модели. Они могут быть раздвижные купе, распашные, подъемные роллеты.
Имея готовую схему со всеми расчетами, можно приступать к изготовлению и монтажу конструкции. Перед началом работ следует подготовить место для шкафа. Необходимо снять старую отделку, вымыть и просушить поверхности. Сбор конструкции своими руками проходит в несколько этапов:
Именно эти элементы придают изделию завершенный вид. Монтируют их в последнюю очередь. По способу изготовления они бывают следующими:
Выбирая шкафчик в туалет, необходимо учитывать специфику помещения. Материал полок, дверец и каркаса должен быть влагостойким, выдерживать нагрев от труб отопления, не деформироваться при контакте с химическими составами при очистке.
Цвет стеллажей в туалете должен быть практичным, немарким, поскольку конструкция будет расположена в труднодоступном месте для уборки. Дверцы лучше делать с минимальным рельефом, без ложбинок и канавок для упрощения поддержания безупречной гигиены.
Обустроить самостоятельно практичный шкаф для туалета очень просто. При точном следовании рекомендациям и с учетом всех размеров, неприметная комната станет настоящим предметом гордости. Использовать можно любую идею, подходящий материал для основы и декора. Правильно собранная и зафиксированная модель прослужит долгие годы. Функциональная конструкция спрячет за своими дверками непривлекательный технический инвентарь, чистящие составы.























