Студия Art-Ugol спроектировалa в Новосибирске квартиру для молодой семьи с двумя детьми. Как и просили заказчики, архитекторы создали функциональное пространство, светлое и уютное, с контрастами и интересными фактурами.
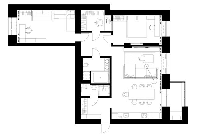
В квартире площадью 100 кв. метров три основных помещения: гостиная-кухня-столовая, спальня родителей и детская, а также санузлы и отдельная гардеробная, в которой выгорожен кабинет. В изначальную планировку внесли изменения: расширили блок санузлов, так, чтобы их вместилось два — гостевой и хозяйский.
Основные материалы: паркетная дубовая доска светлого приглушенного оттенка, серая краска на стенах, белый лак в мебели, мягкие текстильные панели, панели в шпоне винно-коричневого оттенка с рельефом — они имеют разбивку разной ширины, что создает интересную текстуру.
Стена при входе в квартиру отделана зеркальными полотнами, в нее интегрирована скрытая дверь в гостевой санузел. Благодаря зеркалам прихожая выглядит в два раза больше, чем есть на самом деле.
Телевизор и акустика в гостиной встроены в плоскость белой стены. Сабвуфер и дополнительное оборудование — спрятаны в навесном шкафчике. Это сделано для того, чтобы свести к минимуму присутствие технических элементов. Телевизор изначально был куплен с серебристой рамкой. Казалось бы мелочь, но для авторов она стала была серьезной проблемой — терялся смысл задуманного. К счастью, удалось найти мастеров, которые перетянули его черной пленкой.
Архитекторы выбрали мебель проверенных европейских брендов. Кресла B&B Italia в спальне и Vitra в кабинете, стулья в черной коже Calligaris, низкий столик Bonaldo в гостиной. Большой диван с пуфом изготовлены на заказ фабрикой Relax. Светильники — от Foscarini, Diesel Foscarini, Centrsvet.
Многое выполнено по эскизам авторов проекта: корпусная мебель, кухня, кровати. Обеденный стол спроектирован из акрилового камня со стеклянными опорами. Туалетный столик в спальне — тоже на стеклянной опоре, он как будто парит в воздухе.
Композиция кухни линейная, симметричная с одной стороны встроен холодильник, а с другой — духовой шкаф, микроволновка, а также небольшой винный шкаф, который пришлось перетянуть черной пленкой, чтобы он гармонировал с другими приборами.
Рядом со спальней располагается гардеробная, в которой по настоянию заказчика разместили рабочий стол — получился кабинет. Через стеклянную перегородку из спальни в него проникает естественный свет. При желании можно закрыться горизонтальными жалюзи и никому не мешать.
В детской, по желанию заказчика, добавили насыщенный оттенок оранжевого. Напольная паркетная доска переехала на стены и потолок, а на полу появилось пробковое покрытие. Остальные стены заняли обои с геометрическим рисунком марки Eco.
В ванной комнате уместились две раковины, двухместная ванна, постирочный блок за дверцами, унитаз. Напротив ванны в зеркало встроили телевизор, чтобы детям было веселее купаться. Гостевой санузел оснастили душем. Использованы керамогранит Apavisa, Forma, Italgraniti, сантехника Roca, Riho, NS Bath.





























