Режиссер Марк Раймонд Уилкинс (Marc Raymond Wilkins) после многолетней жизни в Нью-Йорке и Берлине решил перебраться в Киев, который давно полюбил — над различными коммерческими проектами здесь он работал далеко не один год.
Выбрал квартиру на Рейтарской — одной из самых красивых улиц в центре города, на пятом этаже дома начала XX века. Оформить пространство площадью 62 кв. метра пригласил друга — архитектора Эмиля Дервиша.
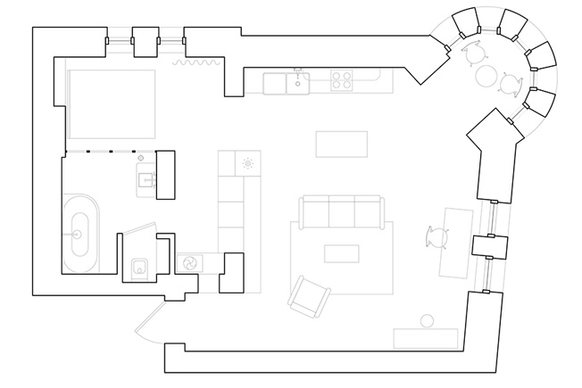
Проект получил название Birdsnest, «Птичье гнездо», из-за расположения на верхнем этаже в башне с живописной конусообразной крышей. В квартире открытая планировка: гостиная, кухня, кабинет и уютная обеденная зона, расположенная в самой башне, плавно перетекают друг в друга, за счет чего помещение ощущается более просторным, чем оно есть на самом деле.
Зонировать пространство отчасти помогает мебель, например, шкаф, с обратной стороны которого расположены книжные полки. В отдельной нише разместилась спальня, отделенная стеклянной перегородкой от ванны без окон: благодаря этому приему санузел обеспечен естественным светом.
Архитектор выбрал приглушенную цветовую палитру: светлые оштукатуренные стены, потолок из окрашенных в белый цвет старых бетонных блоков, теплая текстура дерева, латунные акценты. Все это — идеальный фон для коллекции картин, постеров и фотографий Уилкинса, включая висящий в спальне портрет, написанный его отцом.
Предметы мебели и некоторые детали, такие как оконные и дверные ручки, были разработаны специально для этого проекта, а диван и кресла привезли из Берлина. Кухонная раковина принадлежала прадеду Марка, а фортепьяно досталось ему от матери.
Чистые линии и нейтральная отделка позволяют поместить старинные, дорогие сердцу хозяина дома предметы в центр внимания. И подчеркивают связь между современным пространством и его ностальгическим, очень личным наполнением.
По материалам Yatzer.



















