Удобные изделия для сидения – важный элемент любого эргономичного интерьера. Чаще всего их приобретают в комплекте со столом, реже – каждый отдельно. Некоторые любители легко изготовят оригинальный стул своими руками из различных материалов. Такое «сооружение» в большинстве случаев уникально, неповторимо. Оно создается под имеющийся интерьер, адаптируется под рост, вес, разнообразные потребности владельца, будь то габаритный вариант для роскошной гостиной, мебель для дачи или детский стульчик.
Содержание
Самостоятельное изготовление любого предмета домашней меблировки – процесс не столько сложный, сколько интересный, увлекательный. Процесс создания того или иного стула зависит от конкретной его конструкции. Важно сделать жесткий, крепкий каркас, способный выдержать вес тела человека, быть достаточно устойчивым, не опрокидываться самопроизвольно. Стандартная конструкция имеет четыре ножки, спинку, подлокотники. Самостоятельно выполненная меблировка не только выйдет в разы дешевле магазинных аналогов, но и позволит почувствовать себя настоящим дизайнером.
Материалом изготовления самодельного стула наиболее часто является дерево – дуб, бук, береза, ель, лиственница, ясень, акация, орех и др. Проще, дешевле всего делать стулья из вагонки, фанеры, ЛДСП, ДСП. Также иногда используют:
При наличии кузнечных навыков, отдельные детали можно выковать самостоятельно. Изделия из стекла смотрятся роскошно, как и сочетания нескольких материалов в одном мебельном предмете – бруса с МДФ, толстой фанеры с пластиком и т. д. Древесные спилы, пеньки послужат отличнейшим вариантом для садовой мебели, сломать которую будет весьма проблематично.
Чтобы изготовить мягкий стульчик, понадобится набивка – поролон, синтепон, холлофайбер, а также толстая ткань. При желании можно сделать стул-мешок – он не имеет жесткого каркаса, выполняется только из текстиля и набивки. Иногда мягкая часть плетется в технике макраме, вяжется крючком либо на спицах.
Банную, садовую мебель создают из сосны, которая не боится высокой влажности, частых температурных перепадов, но при этом легко обрабатывается, красится. Стулья из дуба выходят относительно громоздкими, их лучше ставить в просторных помещениях, детской – сломать такое изделие сложно. Береза также отлично распиливается, режется, при грамотной покраске материал можно выдать за более дорогую породу, но размещать готовый стульчик следует лишь в комнатах с низкой влажностью. Если для создания стула планируется изготовление гнутых деталей, лучше взять бук – древесина легко гнется, но контактов с водой не переносит.
Существуют и специальные конструкции, которые также получится изготовить дома. Компьютерный стул, а также предназначенный для игры на пианино, в широких пределах регулируются по высоте, за счет специальных газлифтов. Высокие барные стульчики также могут оснащаться подобным механизмом, используясь одновременно с барной стойкой, как один из вариантов оформления столовой зоны. Кресло-качалку обычно размещают в гостиной у камина или на веранде. Для спальни, гостиной, выполняется компактный прикроватный, придиванный стульчик.
Детские часто делаются «растущими вместе с ребенком» — их ножки выполняются из металлических труб, а длина регулируется при помощи короткого железного стержня, вставляемого в отверстия на различной высоте. В других вариантах конструкцию выполняют из фанеры – здесь переставляется сидение, подставка для ног.
Существует множество разновидностей мебели для сидения:
При желании, стульчики подбираются под любой интерьерный стиль: стандартные, но обитые кожей подойдут для классики, пеньки с перилами из коряг – для эко-стиля. Минимализм украсит простая светлая конструкция, полностью лишенная декора, мебель для модерна будет иметь замысловатую, в том числе асимметричную форму.
«Классический» стул обычно выполняется из древесины. Он прочен, долговечен, устойчив, но достаточно тяжел. Изделие подойдет как взрослым, так и детям – с него сложно упасть, такая мебель не развалится, даже если на нее присядет человек, имеющий большой вес. При изготовлении важно тщательно отшлифовать поверхность, обработать все углы. Для уменьшения массы конструкции берется самое легкое дерево, типа липы, осины, тополя, при желании его можно аккуратно затонировать морилкой, создавая имитацию мореного дуба, ореха, венге.
Наиболее часто в домашних условиях используют мягкие стульчики – на них удобно сидеть даже долгое время. Изделие создается из различных материалов, может быть совсем простым, иметь изящные резные, точеные ножки, две-три и более перекладины на спинке, а сидушку часто оформляют съемным чехлом, который легко постирать в машинке, что весьма удобно при использовании в кухонной, обеденной зоне, детской комнате, гостиной, куда часто приходят гости.
Кресло делается полностью деревянным либо оформляется мягкой обшивкой из плотной ткани, кожи, кожзама. Конструкцию размещают в гостиной или кабинете, спальне, веранде — в кресле отдыхать удобнее всего, оно имеет подлокотники, иногда оснащается съемным чехлом-накидкой. Изделие для домашнего кабинета, офиса может крутиться, легко перемещаться на четырех-шести маленьких колесиках, менять высоту.
Если планируется эксплуатация изделия под открытым небом, его деревянные детали покрываются специальными составами, препятствующими гниению, короблению, плесневению, повреждению насекомыми, грызунами. Мягкую часть лучше сделать непромокаемой, легко моющейся. Приветствуется вариант с зазорами между сиденьем и спинкой – так дождевая вода не будет задерживаться, свободно стекать вниз.
Такое изделие используется как дома, так и при выезде на природу, его легко сложить, убрав на антресоли, когда стул не нужен, поместить в багажник авто, если планируется ехать на дачу или лесной пикник. Когда домик, квартира совсем тесные, но хозяева любят принимать гостей – это вообще идеальный вариант. Даже четыре-шесть таких стульчиков займут мало места. Изготовить такую вещь достаточно сложно: требуется четко продумать конструкцию, которая легко будет приводиться в «рабочее» положение, подобрать самый прочный материал, способный выдержать много циклов складывания-раскладывания.
Складные варианты часто делают из толстой фанеры. Готовое изделие имеет толщину около 2,5 см, его легко повесить на стенку, засунуть под шкаф.
«Высокий» детский стульчик используется как отдельно, при наличии съемной столешницы, так и в качестве дополнения к «взрослому» обеденному столу, обычно делают деревянным, но оснащают съемной спинкой и «сидушкой», которые легко снять и постирать в машинке. Можно сделать и еще более интересную вещь: когда ребенок совсем маленький, она будет представлять собой высокий стульчик с обеденной поверхностью, но когда малышу исполнится два-три года, конструкцию разъединяют, получая маленький стульчик со столиком соответствующей высоты.
Трансформируемое изделие представляет собой одновременно и стульчик, и лестницу-стремянку, имеющую две-три и более ступеньки. Оно особенно удобно при использовании в помещениях с высокими потолками, где много вещей хранится на верхних полках, до которых невозможно достать просто стоя на полу. Вариантов здесь может быть несколько, но наиболее популярен стул, где часть сидения крепится петлями-бабочками, что позволяет превратить стульчик в лесенку буквально несколькими легкими движениями. Конструкция имеет относительно много деталей, поэтому обладает солидным весом.
При разработке, изготовлении каркаса, важно сделать его максимально устойчивым в любом из двух положений.
Табуретка – это стульчик без спинки, наиболее простая для изготовления конструкция. Табурет делают стандартным, детским, барным – соответствующей высоты, оформляют мягким сидением с чехлом, который легко заменяется для стирки. Изделие делается раскладным, используемым для бани, с ящиком для хранения, а при наличии определенных столярных навыков, можно изготовить табурет-стремянку.
Сидение табурета, используемого под открытым небом, делается не цельным, а из нескольких планочек, чтобы вода не застаивалась во время дождя.
Перед тем, как самостоятельно создать полноценные стулья, лучше нарисовать схему, продумать чертеж каждой детали отдельно, изготовить небольшой макет. Столярные инструменты, все необходимые материалы желательно приобрести заранее – в дальнейшем они понадобятся и для создания другой мебели, предметов интерьера, декора. В профессиональных мастерских работа ведется на высококачественном оборудовании, позволяющем придать идеальную форму любой детали, но в домашних условиях можно работать и простыми инструментами.
Для работы потребуются следующие инструменты, материалы:
Данные инструменты необходимы, когда в качестве материала используется дерево, ДВП, МДФ. Если планируется изготовление мягкой конструкции, дополнительно нужны ножницы для нарезки ткани, швейная машинка, острый нож для нарезания поролона, другой набивки, нитки, иголки, мебельный степлер. Когда изделие решено частично или полностью выполнить железным, стеклянным, потребуются приборы для резки металла, стекла. Для складного стульчика понадобится металлический прут.
Любые материалы желательно покупать с запасом около 10-15%.
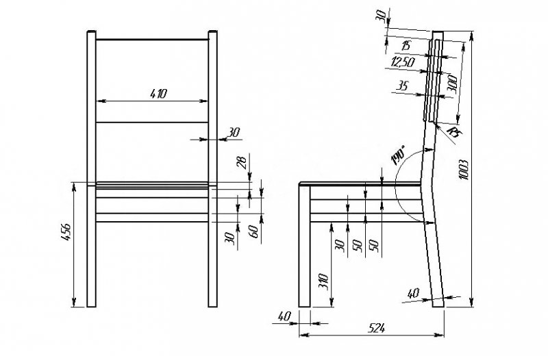
Наиболее важный момент здесь – точно просчитать все размеры, чтобы в дальнейшем не пришлось переделывать. Вначале следует определиться, какое изделие планируется создать:
Конструкция полноценного кресла-стула порой состоит деталей из 15-20. Это множество брусков, досок, всевозможных планок, которые придется собирать воедино, подгонять друг к другу.
Примерный список деталей на схеме выглядит так:
Спинка, в том числе мягкая, крепится на боковые устои, ножки и сидушка соединяются с царгами рамы. Проножки нужны для жесткости конструкции, как и сухари, устанавливаемые во внутренней, нижней части рамы. Подлокотники делать не обязательно – это стандартный, неотъемлемый элемент только для кресел.
При высоте стула 45-60 см подлокотники делаются примерно 20 см, ширина сидения – 40-55 см, высота спинки – 35-55 см. Барный стульчик делается выше – 95-105 см, его спинка – 15-30 см, сидение – 30-40 см.
При составлении чертежей важно отметить места под крепеж, предусмотреть его размеры.
Сам процесс создания выглядит так:
Наиболее красиво смотрятся фигурные детали, выпиливаемые при помощи лобзика, точеные ножки, детали спинки, нижние перекладины.
При сборке важно, чтобы крепежные элементы не слишком выступали над поверхностью, не были травмоопасны. Изделие следует тщательно отшлифовать, убрав любые неровности, заусенцы, покрыть защитным составом. Это наиболее значимо, когда мебель предназначена для детей, вероятность пораниться у которых намного выше, по причине высокой подвижности во время игры. Все углы между перпендикулярно расположенными деталями делаются строго 90 градусов – это легко проверить с помощью транспортира, угольника. Мягкое сидение, спинка натягиваются на готовый каркас либо просто крепятся на завязках.
Декор кресел, табуреток зависит лишь от фантазии их создателя. Конструкцию можно покрасить в любой цвет или даже несколько одновременно, покрыть лаком, обить тканью, разрисовать фантазийными узорами, оформить фактурной резьбой. Все работы с сильно пахнущими составами проводятся на открытом воздухе, в хорошо проветриваемом помещении. Для оформления стульчика резьбой понадобится набор специальных ножей – косых, полукруглых, ложечных различного диаметра и др. Отлично смотрится украшение сидения в технике декупажа.
Для создания фанерного трансформируемого стульчика-стремянки, понадобится электролобзик, лист фанеры толщиной не менее 2,5 см, мебельные петли. Готовое изделие представляет собой табурет без спинки, часть которого откидывается наверх, создавая дополнительную ступеньку, при грамотном составлении чертежа относительно легко сделать изделие со спинкой, подлокотниками.
Самая простая трансформируемая конструкция состоит из двух боковин, представляющих собой все четыре ножки плюс боковые устои спинки. Боковины разрезаются под углом 70 градусов, посредине деталей со спинками делается горизонтальный паз, куда будет вставляться сидение. В задней части сидушки также делается две выемки для крепления между боков спинки. Доска для последней крепится на шипы или саморезы. Две половинки сидения соединяются мебельной петлей. Чтобы изделие не «раскрывалось» самопроизвольно, снаружи нижней части делаются ограничители. Готовое изделие шпаклюется, шлифуется, покрывается лаком, краской.
Существует огромное количество вариантов создания оригинальных, единственных в своем роде стульев, например:
Создание красивых стульев в домашних условиях позволяет значительно сэкономить на такой мебели, в полной мере проявить свои способности к дизайну. При наличии самых простых инструментов и материалов, это под силу каждому. Схемы, чертежи, подробнейшие мастер-классы по изготовлению данного предмета меблировки имеются во многих «бумажных» журналах, касающихся хэнд-мэйда, а также интернет-сайтах.


